物件詳細

一戸建て

神奈川県横浜市戸塚区 戸塚町NEW

所在地

神奈川県横浜市戸塚区 戸塚町

交通

湘南新宿ライン宇須 『戸塚』駅 バス11分 バス停『ヒルズ南戸塚』 徒歩3分

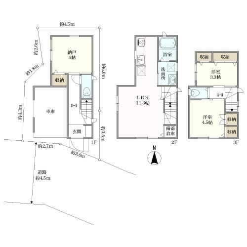
間取り

2LDK

築年月

2023年11月

建物面積

65.2㎡(約19.72坪)

土地面積

43.52㎡(約13.16坪):公簿

建物構造

木造 地上3階建て

  • 物件画像

    現地外観(2025年10月撮影)

  • 物件画像

    外観②(2025年10月撮影)

  • 物件画像

    外観③(2025年10月撮影)

  • 物件画像

    2階LDK(2025年10月撮影)

  • 物件画像

    2階LDK②(2025年10月撮影)

  • 間取り図
神奈川県横浜市戸塚区 戸塚町間取り図
  • サムネイル1
  • サムネイル2
  • サムネイル3
  • サムネイル4
  • サムネイル5
  • 間取り図
電話でのお問い合わせ

横浜営業部(通話料無料)

0120-034-001(通話料無料)

〒220-0004 神奈川県横浜市西区北幸1丁目6番1号
横浜ファーストビル3階(みずほ信託銀行と同じビルです。)

営業時間  09:30~17:30

定休日   水曜日・祝日

マイページ

おすすめポイント(アイコン上にマウスポインタを重ねると説明文が表示されます)

築5年以内物件

築年5年以内の物件

即入居可

戸建またはマンションですぐに入居が可能な物件

南道路

前面道路が敷地の南側に面している物件

物件概要

更新日:2025年11月13日 次回更新予定日:2025年11月27日
所在地
神奈川県横浜市戸塚区 戸塚町

周辺地図 街の情報を見る

交通 湘南新宿ライン宇須 『戸塚』駅 バス11分 バス停『ヒルズ南戸塚』 徒歩3分
価格 3,180万円 ローンシミュレーション
間取り 2LDK
建物面積 65.2㎡(約19.72坪) 土地面積 43.52㎡(約13.16坪):公簿
建物構造 木造 地上3階建て 築年月 2023年11月
土地権利 所有権 地目 宅地
都市計画 市街化区域 用途地域 第一種中高層住居専用地域
建ぺい率 60% 容積率 150%
接道状況 南 4.5m 公道
私道負担 駐車場
その他費用
建物状況 空家 引渡し可能年月 即時
建築確認番号 取引態様 媒介
公法規制その他 国土法:否
備考 間取 2LDK+S 景観法、宅地造成工事規制区域、準防火地域、日影規制、駐車場条例の附置義務区域(周辺地区)
物件番号 0013-01187130
建物状況調査日

掲載物件情報の表示について

(ご注意)
価格などの上記の内容は、変更になっている場合があります。
最新の情報は担当の営業センターへお問い合わせください。

未完成物件の場合の築年月は、工事完了予定年月として表示しています。

ローンシミュレーション(試算)

物件価格

3,180万円

年収

頭金

ボーナス支払額(年間)

返済期間

金利

月々のお支払金額万円

年収も含めた詳細なシミュレーションはこちら

より詳細に調べる
※シミュレーションでの試算(計算)結果は、あくまでも目安です。実際にローン契約をする際は、詳細を金融機関にご確認ください。
※実際のローン契約の際には、諸費用が別途かかります(手数料や印紙税、保証料など)。契約の際にご確認ください。

返済早見表

ボーナス 35年 30年 25年 20年 15年 10年
10万円
20万円
30万円
40万円
50万円
60万円
70万円
80万円
90万円
100万円

凡例

年収に占める返済比率 背景色 意味
1%未満 グレー 試算不可
1%以上25%未満 無理なく返済できる
25%以上40%未満 黄色 返済負担が大きい
40%以上 借入が難しい

※返済早見表での試算(計算)結果は、あくまでも目安です。実際にローン契約をする際は、詳細を金融機関にご確認ください。
※実際のローン契約の際には、諸費用が別途かかります(手数料や印紙税、保証料など)。契約の際にご確認ください。

ローンシミュレーション

お問い合わせ

電話でのお問い合わせ

横浜営業部((通話料無料))

0120-034-001((通話料無料))

営業時間09:30~17:30

定休日水曜日・祝日

住所〒220-0004 神奈川県横浜市西区北幸1丁目6番1号
横浜ファーストビル3階(みずほ信託銀行と同じビルです。)

最近閲覧した物件