物件詳細

投資用・事業用

ライブピア金沢八景【マンション(一棟)】

価格

2億3,000万円

所在地

神奈川県横浜市金沢区 六浦1丁目

交通

京浜急行電鉄本線 『金沢八景』駅 徒歩5分

想定年間収入

1,948.8万円/年

想定利回り

8.47%:年間

土地面積

258.58㎡(約78.22坪):公簿

建物構造

鉄骨造 地上4階

建物面積

824.85㎡(約249.51坪)

築年月

1993年01月

  • 物件画像

    外観(撮影年月:2024年06月)

  • 物件画像

    外観(撮影年月:2024年06月)

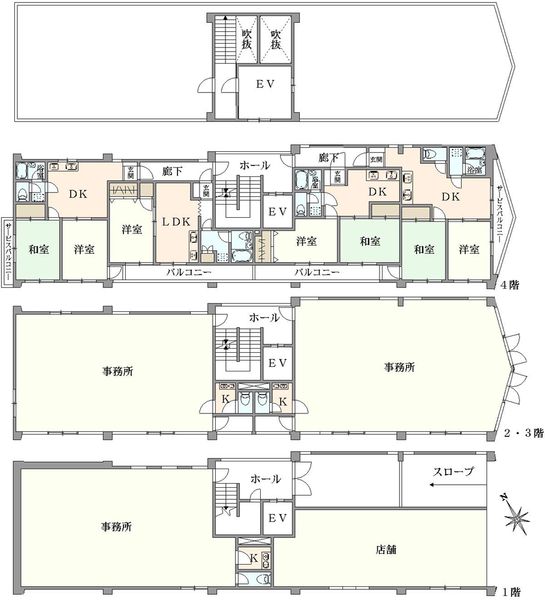
  • 間取り図
ライブピア金沢八景間取り図
  • サムネイル1
  • サムネイル2
  • 間取り図
電話でのお問い合わせ

横浜営業部

0120-034-001(通話料無料)

〒220-0004 神奈川県横浜市西区北幸1丁目6番1号
横浜ファーストビル3階(みずほ信託銀行と同じビルです。)

営業時間  09:30~17:30

定休日   水曜日・祝日

マイページ

おすすめポイント(アイコン上にマウスポインタを重ねると説明文が表示されます)

駅徒歩5分以内

最寄り駅まで徒歩5分以内の物件

全面道路幅員6m以上

前面道路の幅員が6m以上の物件

物件概要

更新日:2026年03月09日 次回更新予定日:2026年03月23日
建物名 ライブピア金沢八景
所在地
神奈川県横浜市金沢区 六浦1丁目

周辺地図 街の情報を見る

交通 京浜急行電鉄本線 『金沢八景』駅 徒歩5分
価格 2億3,000万円
想定年間収入 1,948.8万円/年
想定利回り 8.47%:年間 賃貸状況
総戸数 建物状況 賃貸中
建物面積 824.85㎡(約249.51坪) 土地面積 258.58㎡(約78.22坪):公簿
建物構造 鉄骨造 地上4階 築年月 1993年01月
土地権利 所有権 地目 宅地
都市計画 市街化区域 用途地域 近隣商業地域
建ぺい率 80% 容積率 400%
接道状況 南東 22m 公道
私道負担 駐車場
その他費用
建築確認番号
引渡し可能年月 相談 取引態様 媒介
公法規制その他 都市計画法他制限:準防火地域、第6種高度地区、国土法:否
備考 専有面積:34.7m2~99.56m2/住戸数:10戸/設備:都市ガス、公営水道、本下水
住戸数:10戸、建物内各戸専有面積(最小):34.7㎡、建物内各戸専有面積(最大):99.56㎡
物件番号 0012-01257650
建物状況調査日

掲載物件情報の表示について

・想定年間収入:不動産が全て賃貸された場合の満室時を想定した年間の予定賃料等の収入です。
(賃貸状況が満室の場合は、現行年間収入となります。)
・想定利回り:想定年間収入又は現行年間収入の当該不動産のご購入価格に対する割合で表示しており、公租公課その他当該不動産を維持するために必要な諸経費を控除する前のものです。
なお、「不動産のご購入価格」には、購入に係わる諸経費は加算しておりません。
・収入には賃料のほか、管理費や共益費等の名目で得ている定額の収入を含みます。
・将来にわたり予定賃料収入が確実に得られることを保証するものではありません。
(ご注意)
価格などの上記の内容は、変更になっている場合があります。
最新の情報は担当の営業センターへお問い合わせください。

未完成物件の場合の築年月は、工事完了予定年月として表示しています。

お問い合わせ

電話でのお問い合わせ

横浜営業部

0120-034-001(通話料無料)

営業時間09:30~17:30定休日水曜日・祝日

住所〒220-0004 神奈川県横浜市西区北幸1丁目6番1号
横浜ファーストビル3階(みずほ信託銀行と同じビルです。)

最近閲覧した物件