物件詳細

一戸建て

福岡県福岡市南区 柏原6丁目

所在地

福岡県福岡市南区 柏原6丁目

交通

福岡市七隈線 『福大前』駅 徒歩55分

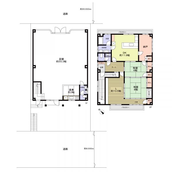
間取り

3LDK

築年月

1988年07月

建物面積

208.64㎡(約63.11坪)

土地面積

180㎡(約54.45坪):公簿

建物構造

鉄骨造 地上2階建て

  • 物件画像

  • 物件画像

  • 物件画像

  • 物件画像

  • 物件画像

  • 間取り図
福岡県福岡市南区 柏原6丁目間取り図
  • サムネイル1
  • サムネイル2
  • サムネイル3
  • サムネイル4
  • サムネイル5
  • 間取り図
電話でのお問い合わせ

九州営業部(通話料無料)

0120-756-846(通話料無料)

〒810-0001 福岡県福岡市中央区天神1丁目11番1号
ONE FUKUOKA BLDG.8階

営業時間  09:30~17:30

定休日   水曜日・祝日

マイページ

おすすめポイント(アイコン上にマウスポインタを重ねると説明文が表示されます)

全面道路幅員6m以上

前面道路の幅員が6m以上の物件

物件概要

更新日:2026年04月29日 次回更新予定日:2026年05月13日
所在地
福岡県福岡市南区 柏原6丁目

周辺地図 街の情報を見る

交通 福岡市七隈線 『福大前』駅 徒歩55分
価格 3,880万円 ローンシミュレーション
間取り 3LDK
建物面積 208.64㎡(約63.11坪) 土地面積 180㎡(約54.45坪):公簿
建物構造 鉄骨造 地上2階建て 築年月 1988年07月
土地権利 所有権 地目 宅地
都市計画 市街化区域 用途地域 近隣商業地域
建ぺい率 80% 容積率 200%
接道状況 南西 9m 公道
私道負担 駐車場
その他費用
建物状況 居住中 引渡し可能年月 相談
建築確認番号 取引態様 媒介
公法規制その他 国土法:否
備考
物件番号 0017-01290813
建物状況調査日

掲載物件情報の表示について

(ご注意)
価格などの上記の内容は、変更になっている場合があります。
最新の情報は担当の営業センターへお問い合わせください。

未完成物件の場合の築年月は、工事完了予定年月として表示しています。

ローンシミュレーション(試算)

物件価格

3,880万円

年収

頭金

ボーナス支払額(年間)

返済期間

金利

月々のお支払金額万円

年収も含めた詳細なシミュレーションはこちら

より詳細に調べる
※シミュレーションでの試算(計算)結果は、あくまでも目安です。実際にローン契約をする際は、詳細を金融機関にご確認ください。
※実際のローン契約の際には、諸費用が別途かかります(手数料や印紙税、保証料など)。契約の際にご確認ください。

返済早見表

ボーナス 35年 30年 25年 20年 15年 10年
10万円
20万円
30万円
40万円
50万円
60万円
70万円
80万円
90万円
100万円

凡例

年収に占める返済比率 背景色 意味
1%未満 グレー 試算不可
1%以上25%未満 無理なく返済できる
25%以上40%未満 黄色 返済負担が大きい
40%以上 借入が難しい

※返済早見表での試算(計算)結果は、あくまでも目安です。実際にローン契約をする際は、詳細を金融機関にご確認ください。
※実際のローン契約の際には、諸費用が別途かかります(手数料や印紙税、保証料など)。契約の際にご確認ください。

ローンシミュレーション

お問い合わせ

電話でのお問い合わせ

九州営業部((通話料無料))

0120-756-846((通話料無料))

営業時間09:30~17:30

定休日水曜日・祝日

住所〒810-0001 福岡県福岡市中央区天神1丁目11番1号
ONE FUKUOKA BLDG.8階

最近閲覧した物件