物件詳細

土地

神奈川県川崎市麻生区 王禅寺西2丁目

所在地

神奈川県川崎市麻生区 王禅寺西2丁目

交通

小田急電鉄小田原線 『新百合ヶ丘』駅 徒歩19分

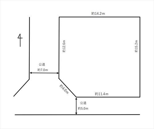
土地面積

215.35㎡(約65.14坪):公簿

建ぺい率/容積率

50%/80%

  • 物件画像

    【現地写真2025年9月撮影】

  • 物件画像

    【現地写真2025年9月撮影】

  • 物件画像

    【現地写真2025年9月撮影】

  • 物件画像

    【現地写真2025年9月撮影】

  • 物件画像

    【現地前面道路2025年9月撮影】

  • 間取り図
神奈川県川崎市麻生区 王禅寺西2丁目間取り図
  • サムネイル1
  • サムネイル2
  • サムネイル3
  • サムネイル4
  • サムネイル5
  • 間取り図
電話でのお問い合わせ

町田センター(通話料無料)

0120-899-644(通話料無料)

〒194-0022 東京都町田市森野1丁目23番19号
小田急町田森野ビル4階

営業時間  09:30~17:30

定休日   水曜日・祝日

マイページ

おすすめポイント(アイコン上にマウスポインタを重ねると説明文が表示されます)

南道路

前面道路が敷地の南側に面している物件

角地

2つ以上の道路に囲まれた区画の物件

間口10m以上

敷地の間口が前面道路に10m以上接している物件

全面道路幅員6m以上

前面道路の幅員が6m以上の物件

低層住居専用地域

第一種もしくは第二種低層住居専用地域内

物件概要

更新日:2025年12月08日 次回更新予定日:2025年12月22日
所在地
神奈川県川崎市麻生区 王禅寺西2丁目

周辺地図 街の情報を見る

交通 小田急電鉄小田原線 『新百合ヶ丘』駅 徒歩19分
価格 8,900万円 ローンシミュレーション
土地面積 215.35㎡(約65.14坪):公簿
土地権利 所有権 地目 宅地
都市計画 市街化区域 用途地域 第一種低層住居専用地域
建ぺい率 50% 容積率 80%
接道状況 西 7m 公道
私道負担
土地現況 古家有 建築条件
その他費用
引渡時期 相談 取引態様 媒介
公法規制その他 国土法:否
備考 接道2:南、幅員5.0m
西側間口には隅切り部分(4.06m)を含みます。 宅地造成等工事規制区域、建築基準法第22条区域
物件番号 0013-01162831

掲載物件情報の表示について

(ご注意)
価格などの上記の内容は、変更になっている場合があります。
最新の情報は担当の営業センターへお問い合わせください。

ローンシミュレーション(試算)

物件価格

8,900万円

年収

頭金

ボーナス支払額(年間)

返済期間

金利

月々のお支払金額万円

年収も含めた詳細なシミュレーションはこちら

より詳細に調べる
※シミュレーションでの試算(計算)結果は、あくまでも目安です。実際にローン契約をする際は、詳細を金融機関にご確認ください。
※実際のローン契約の際には、諸費用が別途かかります(手数料や印紙税、保証料など)。契約の際にご確認ください。

返済早見表

ボーナス 35年 30年 25年 20年 15年 10年
10万円
20万円
30万円
40万円
50万円
60万円
70万円
80万円
90万円
100万円

凡例

年収に占める返済比率 背景色 意味
1%未満 グレー 試算不可
1%以上25%未満 無理なく返済できる
25%以上40%未満 黄色 返済負担が大きい
40%以上 借入が難しい

※返済早見表での試算(計算)結果は、あくまでも目安です。実際にローン契約をする際は、詳細を金融機関にご確認ください。
※実際のローン契約の際には、諸費用が別途かかります(手数料や印紙税、保証料など)。契約の際にご確認ください。

ローンシミュレーション

お問い合わせ

電話でのお問い合わせ

町田センター((通話料無料))

0120-899-644((通話料無料))

営業時間09:30~17:30

定休日水曜日・祝日

住所〒194-0022 東京都町田市森野1丁目23番19号
小田急町田森野ビル4階

最近閲覧した物件