物件詳細

投資用・事業用

タスキsmart千石II【アパート(一棟)】

価格

2億6,000万円

所在地

東京都文京区 千石1丁目

交通

都営三田線 『千石』駅 徒歩3分

想定年間収入

952.8万円/年

想定利回り

3.66%:年間

土地面積

41.27㎡(約12.48坪):公簿

建物構造

鉄筋コンクリート造 地上5階

建物面積

143.95㎡(約43.54坪)

築年月

2023年07月

  • 物件画像

    外観

  • 物件画像

    その他外観

  • 物件画像

    その他外観

  • 物件画像

    その他

  • 物件画像

    ゴミ置場

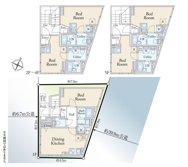
  • 間取り図
タスキsmart千石II間取り図
  • サムネイル1
  • サムネイル2
  • サムネイル3
  • サムネイル4
  • サムネイル5
  • 間取り図
電話でのお問い合わせ

〒110-0005 東京都台東区上野3丁目16番5号
ヒューリック上野ビル(みずほ銀行)7階

営業時間  09:30~17:30

定休日   水曜日・祝日

マイページ

おすすめポイント(アイコン上にマウスポインタを重ねると説明文が表示されます)

築5年以内物件

築年5年以内の物件

駅徒歩5分以内

最寄り駅まで徒歩5分以内の物件

角地

2つ以上の道路に囲まれた区画の物件

間口10m以上

敷地の間口が前面道路に10m以上接している物件

全面道路幅員6m以上

前面道路の幅員が6m以上の物件

物件概要

更新日:2026年03月12日 次回更新予定日:2026年03月26日
建物名 タスキsmart千石II
所在地
東京都文京区 千石1丁目

周辺地図 街の情報を見る

交通 都営三田線 『千石』駅 徒歩3分
価格 2億6,000万円
想定年間収入 952.8万円/年
想定利回り 3.66%:年間 賃貸状況
総戸数 9戸 建物状況 賃貸中
建物面積 143.95㎡(約43.54坪) 土地面積 41.27㎡(約12.48坪):公簿
建物構造 鉄筋コンクリート造 地上5階 築年月 2023年07月
土地権利 所有権 地目 宅地
都市計画 市街化区域 用途地域 近隣商業地域
建ぺい率 80% 容積率 400%
接道状況 東 39.9m 公道
私道負担 駐車場
その他費用
建築確認番号
引渡し可能年月 相談 取引態様 媒介
公法規制その他 オーナーチェンジ、国土法:否
備考 ・ガス:オール電化※都市ガス引込無
接道2:南西、幅員6.7m
・間取り:1DK×1戸、1R×8戸 ・総戸数9戸(住戸×9戸) ・満室稼働中 ・その他保証金:クリーニング代(491,700円)
住戸数:9戸、事務所等住戸以外戸数:0戸、建物内各戸専有面積(最小):14.35㎡、建物内各戸専有面積(最大):28.6㎡
物件番号 0014-01261621
建物状況調査日

掲載物件情報の表示について

・想定年間収入:不動産が全て賃貸された場合の満室時を想定した年間の予定賃料等の収入です。
(賃貸状況が満室の場合は、現行年間収入となります。)
・想定利回り:想定年間収入又は現行年間収入の当該不動産のご購入価格に対する割合で表示しており、公租公課その他当該不動産を維持するために必要な諸経費を控除する前のものです。
なお、「不動産のご購入価格」には、購入に係わる諸経費は加算しておりません。
・収入には賃料のほか、管理費や共益費等の名目で得ている定額の収入を含みます。
・将来にわたり予定賃料収入が確実に得られることを保証するものではありません。
(ご注意)
価格などの上記の内容は、変更になっている場合があります。
最新の情報は担当の営業センターへお問い合わせください。

未完成物件の場合の築年月は、工事完了予定年月として表示しています。

お問い合わせ

電話でのお問い合わせ

営業時間09:30~17:30定休日水曜日・祝日

住所〒110-0005 東京都台東区上野3丁目16番5号
ヒューリック上野ビル(みずほ銀行)7階

最近閲覧した物件