物件詳細

投資用・事業用

日神パレステージ横濱【マンション(区分)】

価格

3,380万円

所在地

神奈川県横浜市西区 境之谷

交通

相模鉄道本線 『西横浜』駅 徒歩14分
京浜急行電鉄本線 『黄金町』駅 徒歩15分

想定年間収入

135.6万円/年

想定利回り

4.01%:年間

間取り

3LDK

築年月

1995年06月

専有面積

66.7㎡(約20.17坪):壁芯

所在階

3階部分

  • 物件画像

    外観写真

  • 物件画像

    エントランス

  • 物件画像

    エントランス

  • 物件画像

    共用部

  • 物件画像

    共用部

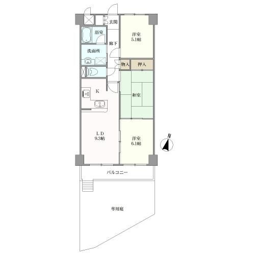
  • 間取り図
日神パレステージ横濱間取り図
  • サムネイル1
  • サムネイル2
  • サムネイル3
  • サムネイル4
  • サムネイル5
  • 間取り図
電話でのお問い合わせ

横浜営業部

0120-034-001(通話料無料)

〒220-0004 神奈川県横浜市西区北幸1丁目6番1号
横浜ファーストビル3階(みずほ信託銀行と同じビルです。)

営業時間  09:30~17:30

定休日   水曜日・祝日

マイページ

おすすめポイント(アイコン上にマウスポインタを重ねると説明文が表示されます)

駐車場空き有り

マンションで敷地内駐車場に空きがある物件

南向き(南東・南西含む)

主要採光面が南向き(南東・南西含む)の物件

物件概要

更新日:2026年04月13日 次回更新予定日:2026年04月27日
建物名 日神パレステージ横濱
所在地
神奈川県横浜市西区 境之谷

周辺地図 街の情報を見る

交通 相模鉄道本線 『西横浜』駅 徒歩14分
京浜急行電鉄本線 『黄金町』駅 徒歩15分
価格 3,380万円
想定年間収入 135.6万円/年 想定利回り 4.01%:年間
間取り 3LDK 専有面積 66.7㎡(約20.17坪):壁芯
建物構造 鉄筋コンクリート造 地上7階 所在階 3階部分
バルコニー有無 バルコニー面積 6.79㎡
専用庭面積 バルコニー方向
築年月 1995年06月 総戸数 104戸
都市計画 用途地域 近隣商業地域
土地権利 所有権
管理形態 管理会社に全部委託 管理員の勤務形態 日勤
管理費 13,300円/月 修繕積立金 5,040円/月
駐車場 空有 空数:31台 月額:20000円~22000円/月
その他費用
建物状況 賃貸中 引渡し可能年月 即時
建築確認番号 取引態様 媒介
公法規制その他 用途地域:近隣商業地域、第2種中高層住居専用地域
備考 オーナーチェンジ
物件番号 0013-01273909
建物状況調査日

掲載物件情報の表示について

・想定年間収入:不動産が全て賃貸された場合の満室時を想定した年間の予定賃料等の収入です。
(建物現況が賃貸中の場合は、現行年間収入となります。)
・想定利回り:想定年間収入又は現行年間収入の当該不動産のご購入価格に対する割合で表示しており、公租公課その他当該不動産を維持するために必要な諸経費を控除する前のものです。
なお、「不動産のご購入価格」には、購入に係わる諸経費は加算しておりません。
・将来にわたり予定賃料収入が確実に得られることを保証するものではありません。
・管理費・修繕積立金は共用部分の維持管理に要する費用として管理組合に毎月納入する金額を表示しています。
(ご注意)
価格などの上記の内容は、変更になっている場合があります。
最新の情報は担当の営業センターへお問い合わせください。

未完成物件の場合の築年月は、工事完了予定年月として表示しています。

お問い合わせ

電話でのお問い合わせ

横浜営業部

0120-034-001(通話料無料)

営業時間09:30~17:30定休日水曜日・祝日

住所〒220-0004 神奈川県横浜市西区北幸1丁目6番1号
横浜ファーストビル3階(みずほ信託銀行と同じビルです。)

最近閲覧した物件