物件詳細

投資用・事業用

レグノ・フォルテ二番町【マンション(区分)】

価格

3,800万円

所在地

東京都千代田区 二番町

交通

JR中央本線 『四ツ谷』駅 徒歩5分
東京メトロ有楽町線 『麹町』駅 徒歩4分

想定年間収入

想定利回り

間取り

1K

築年月

2006年10月

専有面積

26.07㎡(約7.88坪):壁芯

所在階

6階部分

  • 物件画像

    外観(2025年10月撮影)

  • 物件画像

    外観(2025年10月撮影)

  • 物件画像

    アプローチ

  • 物件画像

    入口

  • 物件画像

    ロビー

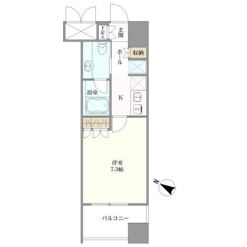
  • 間取り図
レグノ・フォルテ二番町間取り図
  • サムネイル1
  • サムネイル2
  • サムネイル3
  • サムネイル4
  • サムネイル5
  • 間取り図
電話でのお問い合わせ

〒103-0027 東京都中央区日本橋1丁目3番13号
東京建物日本橋ビル8階

営業時間  09:00~17:00

定休日   日曜日・祝日
※ビルのセキュリティ運営上、(土)は 17:00以降、(日)は終日1階エントランスがロックされています。
入館には社員立ち合いが必要なため、ご来店の際は事前のご連絡をお願いいたします。

マイページ

おすすめポイント(アイコン上にマウスポインタを重ねると説明文が表示されます)

駅徒歩5分以内

最寄り駅まで徒歩5分以内の物件

南向き(南東・南西含む)

主要採光面が南向き(南東・南西含む)の物件

物件概要

更新日:2025年12月16日 次回更新予定日:2025年12月30日
建物名 レグノ・フォルテ二番町
所在地
東京都千代田区 二番町

周辺地図 街の情報を見る

交通 JR中央本線 『四ツ谷』駅 徒歩5分
東京メトロ有楽町線 『麹町』駅 徒歩4分
価格 3,800万円
想定年間収入 想定利回り
間取り 1K 専有面積 26.07㎡(約7.88坪):壁芯
建物構造 鉄筋コンクリート造 地上14階 所在階 6階部分
バルコニー有無 バルコニー面積 4.88㎡
専用庭面積 バルコニー方向 南西
築年月 2006年10月 総戸数 76戸
都市計画 用途地域 第二種住居地域
土地権利 所有権
管理形態 管理会社に全部委託 管理員の勤務形態 日勤
管理費 5,835円/月 修繕積立金 3,063円/月
駐車場
その他費用
建物状況 賃貸中 引渡し可能年月 即時
建築確認番号 取引態様 媒介
公法規制その他 ■ペット飼育不可
備考 オーナーチェンジ ■駐輪場使用料:(上段)金100円/月、(下段)金300円/月
物件番号 0013-01178220
建物状況調査日

掲載物件情報の表示について

・想定年間収入:不動産が全て賃貸された場合の満室時を想定した年間の予定賃料等の収入です。
(建物現況が賃貸中の場合は、現行年間収入となります。)
・想定利回り:想定年間収入又は現行年間収入の当該不動産のご購入価格に対する割合で表示しており、公租公課その他当該不動産を維持するために必要な諸経費を控除する前のものです。
なお、「不動産のご購入価格」には、購入に係わる諸経費は加算しておりません。
・将来にわたり予定賃料収入が確実に得られることを保証するものではありません。
・管理費・修繕積立金は共用部分の維持管理に要する費用として管理組合に毎月納入する金額を表示しています。
(ご注意)
価格などの上記の内容は、変更になっている場合があります。
最新の情報は担当の営業センターへお問い合わせください。

未完成物件の場合の築年月は、工事完了予定年月として表示しています。

お問い合わせ

電話でのお問い合わせ

営業時間09:00~17:00定休日日曜日・祝日
※ビルのセキュリティ運営上、(土)は 17:00以降、(日)は終日1階エントランスがロックされています。
入館には社員立ち合いが必要なため、ご来店の際は事前のご連絡をお願いいたします。

住所〒103-0027 東京都中央区日本橋1丁目3番13号
東京建物日本橋ビル8階

最近閲覧した物件