物件詳細

投資用・事業用

東京都北区 浮間4丁目【事務所(一棟)】

価格

2億5,000万円

所在地

東京都北区 浮間4丁目

交通

JR埼京線 『浮間舟渡』駅 徒歩14分
都営三田線 『蓮根』駅 徒歩18分

想定年間収入

想定利回り

土地面積

330.6㎡(約100.00坪):公簿

建物構造

鉄骨造 地上5階

建物面積

361.5㎡(約109.35坪)

築年月

1993年11月

  • 物件画像

    外観1

  • 物件画像

    外観2

  • 物件画像

    外観3

  • 物件画像

    現地1

  • 物件画像

    前面道路1

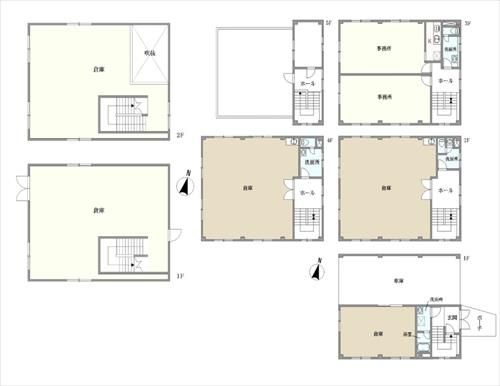
  • 間取り図
東京都北区 浮間4丁目間取り図
  • サムネイル1
  • サムネイル2
  • サムネイル3
  • サムネイル4
  • サムネイル5
  • 間取り図
電話でのお問い合わせ

池袋営業部

0120-222-816(通話料無料)

〒171-0022 東京都豊島区南池袋2丁目28番13号
KHK池袋ビル6階

営業時間  09:30~17:30

定休日   水曜日・祝日

マイページ

おすすめポイント(アイコン上にマウスポインタを重ねると説明文が表示されます)

全面道路幅員6m以上

前面道路の幅員が6m以上の物件

物件概要

更新日:2026年01月18日 次回更新予定日:2026年02月01日
建物名
所在地
東京都北区 浮間4丁目

周辺地図 街の情報を見る

交通 JR埼京線 『浮間舟渡』駅 徒歩14分
都営三田線 『蓮根』駅 徒歩18分
価格 2億5,000万円
想定年間収入
想定利回り 賃貸状況
総戸数 建物状況 使用中
建物面積 361.5㎡(約109.35坪) 土地面積 330.6㎡(約100.00坪):公簿
建物構造 鉄骨造 地上5階 築年月 1993年11月
土地権利 所有権 地目 宅地
都市計画 市街化区域 用途地域 工業地域
建ぺい率 60% 容積率 200%
接道状況 東 7.1m 公道
私道負担 駐車場
その他費用
建築確認番号
引渡し可能年月 相談 取引態様 媒介
公法規制その他 建物2構造:軽量鉄骨造2階建 用途:倉庫 建物延面積:196.78㎡ 築年月:2020年6月、国土法:否
備考
物件番号 0013-01178218
建物状況調査日

掲載物件情報の表示について

・想定年間収入:不動産が全て賃貸された場合の満室時を想定した年間の予定賃料等の収入です。
(賃貸状況が満室の場合は、現行年間収入となります。)
・想定利回り:想定年間収入又は現行年間収入の当該不動産のご購入価格に対する割合で表示しており、公租公課その他当該不動産を維持するために必要な諸経費を控除する前のものです。
なお、「不動産のご購入価格」には、購入に係わる諸経費は加算しておりません。
・収入には賃料のほか、管理費や共益費等の名目で得ている定額の収入を含みます。
・将来にわたり予定賃料収入が確実に得られることを保証するものではありません。
(ご注意)
価格などの上記の内容は、変更になっている場合があります。
最新の情報は担当の営業センターへお問い合わせください。

未完成物件の場合の築年月は、工事完了予定年月として表示しています。

お問い合わせ

電話でのお問い合わせ

池袋営業部

0120-222-816(通話料無料)

営業時間09:30~17:30定休日水曜日・祝日

住所〒171-0022 東京都豊島区南池袋2丁目28番13号
KHK池袋ビル6階

最近閲覧した物件