物件詳細

投資用・事業用

コリビングハウス八幡山【アパート(一棟)】

価格

2億1,000万円

所在地

東京都杉並区 上高井戸1丁目

交通

京王電鉄京王線 『八幡山』駅 徒歩4分

想定年間収入

1,477.2万円/年

想定利回り

7.03%:年間

土地面積

168.3㎡(約50.91坪):公簿

建物構造

木造 地上3階

建物面積

265.81㎡(約80.40坪)

築年月

2017年08月

  • 物件画像

    外観

  • 物件画像

    外観

  • 物件画像

    外観

  • 物件画像

    外観

  • 物件画像

    前面道路

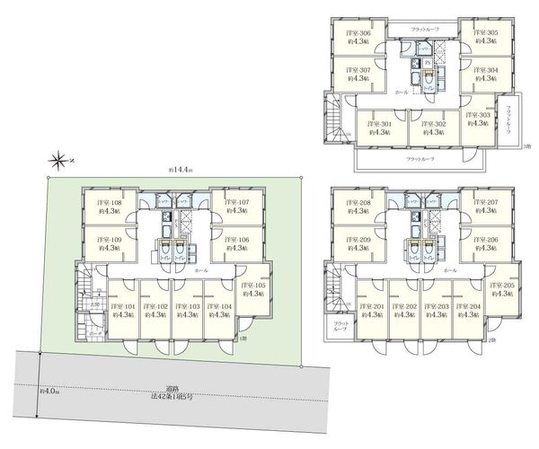
  • 間取り図
コリビングハウス八幡山間取り図
  • サムネイル1
  • サムネイル2
  • サムネイル3
  • サムネイル4
  • サムネイル5
  • 間取り図
電話でのお問い合わせ

吉祥寺営業部

0120-021-722(通話料無料)

〒180-0003 東京都武蔵野市吉祥寺南町2丁目3番15号
吉祥寺フコク生命ビル4階

営業時間  09:30~17:30

定休日   水曜日・祝日

マイページ

おすすめポイント(アイコン上にマウスポインタを重ねると説明文が表示されます)

築10年以内物件

築年10年以内の物件

駅徒歩5分以内

最寄り駅まで徒歩5分以内の物件

間口10m以上

敷地の間口が前面道路に10m以上接している物件

物件概要

更新日:2026年03月12日 次回更新予定日:2026年03月26日
建物名 コリビングハウス八幡山
所在地
東京都杉並区 上高井戸1丁目

周辺地図 街の情報を見る

交通 京王電鉄京王線 『八幡山』駅 徒歩4分
価格 2億1,000万円
想定年間収入 1,477.2万円/年
想定利回り 7.03%:年間 賃貸状況
総戸数 建物状況 賃貸中
建物面積 265.81㎡(約80.40坪) 土地面積 168.3㎡(約50.91坪):公簿
建物構造 木造 地上3階 築年月 2017年08月
土地権利 所有権 地目 宅地
都市計画 市街化区域 用途地域 準住居地域
建ぺい率 60% 容積率 160%
接道状況 東 4m 私道
私道負担 有、私道負担面積(別途):31.55㎡ 駐車場
その他費用
建築確認番号
引渡し可能年月 相談 取引態様 媒介
公法規制その他 都市計画法他制限:防火地域、第3種高度地区、国土法:否
備考 専有面積:7m2~7m2/住戸数:25戸/シェアハウスとして賃貸中。毎月の収入は、シェアハウスの入居状況によって変動いたします。また、光熱費、公租公課その他物件を維持するために必要な費用の控除前のものです。表示の利回りは、1年間の想定賃料収入の取得対価に対する割合です。/設備:都市ガス、公営水道、本下水/エレベーター無
住戸数:25戸、建物内各戸専有面積(最小):7.0㎡、建物内各戸専有面積(最大):7.0㎡
物件番号 0012-01246961
建物状況調査日

掲載物件情報の表示について

・想定年間収入:不動産が全て賃貸された場合の満室時を想定した年間の予定賃料等の収入です。
(賃貸状況が満室の場合は、現行年間収入となります。)
・想定利回り:想定年間収入又は現行年間収入の当該不動産のご購入価格に対する割合で表示しており、公租公課その他当該不動産を維持するために必要な諸経費を控除する前のものです。
なお、「不動産のご購入価格」には、購入に係わる諸経費は加算しておりません。
・収入には賃料のほか、管理費や共益費等の名目で得ている定額の収入を含みます。
・将来にわたり予定賃料収入が確実に得られることを保証するものではありません。
(ご注意)
価格などの上記の内容は、変更になっている場合があります。
最新の情報は担当の営業センターへお問い合わせください。

未完成物件の場合の築年月は、工事完了予定年月として表示しています。

お問い合わせ

電話でのお問い合わせ

吉祥寺営業部

0120-021-722(通話料無料)

営業時間09:30~17:30定休日水曜日・祝日

住所〒180-0003 東京都武蔵野市吉祥寺南町2丁目3番15号
吉祥寺フコク生命ビル4階

最近閲覧した物件