物件詳細

投資用・事業用

North Gate(練馬区北町1丁目デザイナーズアパート)【アパート(一棟)】

価格

1億1,800万円

所在地

東京都練馬区 北町1丁目

交通

東武鉄道東上線 『東武練馬』駅 徒歩11分
東武鉄道東上線 『上板橋』駅 徒歩11分

想定年間収入

613.8万円/年

想定利回り

5.2%:年間

土地面積

126.57㎡(約38.28坪):公簿

建物構造

木造 地上3階

建物面積

186.21㎡(約56.32坪)

築年月

2017年11月

  • 物件画像

    外観

  • 物件画像

    外観

  • 物件画像

    外観

  • 物件画像

    アプローチ

  • 物件画像

    アプローチ

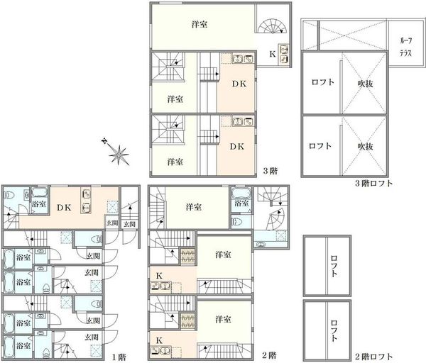
  • 間取り図
North Gate(練馬区北町1丁目デザイナーズアパート)間取り図
  • サムネイル1
  • サムネイル2
  • サムネイル3
  • サムネイル4
  • サムネイル5
  • 間取り図
電話でのお問い合わせ

池袋営業部

0120-222-816(通話料無料)

〒171-0022 東京都豊島区南池袋2丁目28番13号
KHK池袋ビル6階

営業時間  09:30~17:30

定休日   水曜日・祝日

マイページ

おすすめポイント(アイコン上にマウスポインタを重ねると説明文が表示されます)

築10年以内物件

築年10年以内の物件

全面道路幅員6m以上

前面道路の幅員が6m以上の物件

物件概要

更新日:2026年01月18日 次回更新予定日:2026年02月01日
建物名 North Gate(練馬区北町1丁目デザイナーズアパート)
所在地
東京都練馬区 北町1丁目

周辺地図 街の情報を見る

交通 東武鉄道東上線 『東武練馬』駅 徒歩11分
東武鉄道東上線 『上板橋』駅 徒歩11分
価格 1億1,800万円
想定年間収入 613.8万円/年
想定利回り 5.2%:年間 賃貸状況
総戸数 建物状況 賃貸中
建物面積 186.21㎡(約56.32坪) 土地面積 126.57㎡(約38.28坪):公簿
建物構造 木造 地上3階 築年月 2017年11月
土地権利 所有権 地目 宅地
都市計画 市街化区域 用途地域 準工業地域
建ぺい率 60% 容積率 200%
接道状況 南西 6m 公道
私道負担 駐車場
その他費用
建築確認番号
引渡し可能年月 相談 取引態様 媒介
公法規制その他 都市計画法他制限:準防火地域、第2種高度地区、北町一丁目地区地区計画、国土法:否
備考 専有面積:24.81m2~41.77m2/住戸数:6戸/設備:集中プロパン、公営水道、本下水/エレベーター無
住戸数:6戸、建物内各戸専有面積(最小):24.81㎡、建物内各戸専有面積(最大):41.77㎡
物件番号 0012-01181419
建物状況調査日

掲載物件情報の表示について

・想定年間収入:不動産が全て賃貸された場合の満室時を想定した年間の予定賃料等の収入です。
(賃貸状況が満室の場合は、現行年間収入となります。)
・想定利回り:想定年間収入又は現行年間収入の当該不動産のご購入価格に対する割合で表示しており、公租公課その他当該不動産を維持するために必要な諸経費を控除する前のものです。
なお、「不動産のご購入価格」には、購入に係わる諸経費は加算しておりません。
・収入には賃料のほか、管理費や共益費等の名目で得ている定額の収入を含みます。
・将来にわたり予定賃料収入が確実に得られることを保証するものではありません。
(ご注意)
価格などの上記の内容は、変更になっている場合があります。
最新の情報は担当の営業センターへお問い合わせください。

未完成物件の場合の築年月は、工事完了予定年月として表示しています。

お問い合わせ

電話でのお問い合わせ

池袋営業部

0120-222-816(通話料無料)

営業時間09:30~17:30定休日水曜日・祝日

住所〒171-0022 東京都豊島区南池袋2丁目28番13号
KHK池袋ビル6階

最近閲覧した物件