物件詳細

投資用・事業用

新高円寺ハイムメゾン新高円寺【アパート(一棟)】

価格

2億2,000万円

所在地

東京都杉並区 堀ノ内3丁目

交通

東京メトロ丸ノ内線 『新高円寺』駅 徒歩9分

想定年間収入

1,507.4万円/年

想定利回り

6.8%:年間

土地面積

370.64㎡(約112.11坪):公簿

建物構造

木造 地上2階

建物面積

286.1㎡(約86.54坪)

築年月

1990年06月

  • 物件画像
  • 物件画像
  • 物件画像
  • 物件画像
  • 間取り図
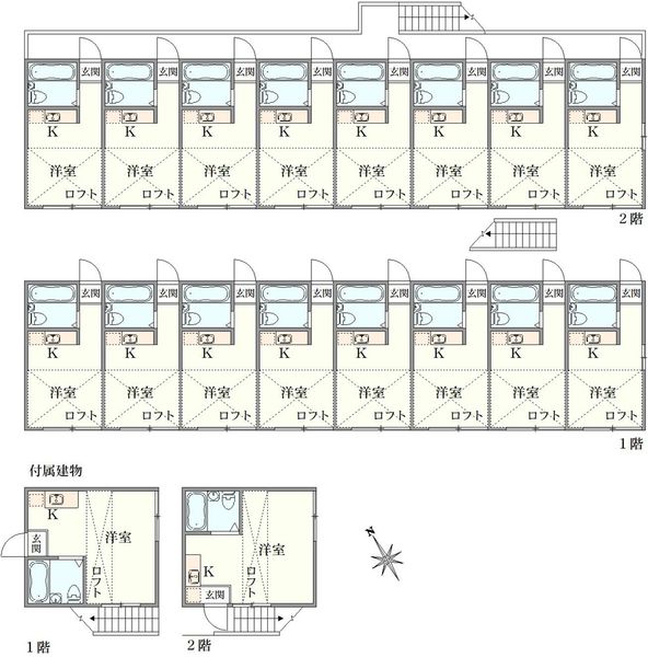
新高円寺ハイムメゾン新高円寺間取り図
  • サムネイル1
  • サムネイル2
  • サムネイル3
  • サムネイル4
  • 間取り図
電話でのお問い合わせ

荻窪センター

0120-190-324(通話料無料)

〒167-0032 東京都杉並区天沼3丁目3番3号
澁澤荻窪ビル5階

営業時間  09:30~17:30

定休日   水曜日・祝日

マイページ

おすすめポイント(アイコン上にマウスポインタを重ねると説明文が表示されます)

駅徒歩10分以内

最寄り駅まで徒歩10分以内の物件

低層住居専用地域

第一種もしくは第二種低層住居専用地域内

物件概要

更新日:2025年11月12日 次回更新予定日:2025年11月26日
建物名 新高円寺ハイムメゾン新高円寺
所在地
東京都杉並区 堀ノ内3丁目

周辺地図 街の情報を見る

交通 東京メトロ丸ノ内線 『新高円寺』駅 徒歩9分
価格 2億2,000万円
想定年間収入 1,507.4万円/年
想定利回り 6.8%:年間 賃貸状況
総戸数 建物状況 賃貸中
建物面積 286.1㎡(約86.54坪) 土地面積 370.64㎡(約112.11坪):公簿
建物構造 木造 地上2階 築年月 1990年06月
土地権利 所有権 地目 宅地
都市計画 市街化区域 用途地域 第一種低層住居専用地域
建ぺい率 50% 容積率 100%
接道状況 北東 5m 私道
私道負担 有、私道負担面積(別途):27.16㎡ 駐車場
その他費用
建築確認番号
引渡し可能年月 相談 取引態様 媒介
公法規制その他 都市計画法他制限:準防火地域、第1種高度地区、国土法:否
備考 専有面積:12m2~15m2/住戸数:28戸/建物概要は、2棟の合計となります。内訳・新高円寺ハイム建物面積:183.56m2(公簿)間取り:1R×18専有面積:約12~15m2構造・階数:木造スレート葺2階、建築年月:1990年6月・メゾン新高円寺建物面積:102.54m2(公簿)間取り:1R×10専有面積:約12m2構造・階数:木造スレート葺2階建、築年月:1990年6月・年間想定収入は、2棟の合計・専有面積の最小と最大は売主からの聴取によります。 実際の数値と異なる場合、現況を優先します。・各建物個別での販売はお受けできません/設備:オール電化、公営水道、本下水
住戸数:28戸、建物内各戸専有面積(最小):12.0㎡、建物内各戸専有面積(最大):15.0㎡
物件番号 0012-01164640
建物状況調査日

掲載物件情報の表示について

・想定年間収入:不動産が全て賃貸された場合の満室時を想定した年間の予定賃料等の収入です。
(賃貸状況が満室の場合は、現行年間収入となります。)
・想定利回り:想定年間収入又は現行年間収入の当該不動産のご購入価格に対する割合で表示しており、公租公課その他当該不動産を維持するために必要な諸経費を控除する前のものです。
なお、「不動産のご購入価格」には、購入に係わる諸経費は加算しておりません。
・収入には賃料のほか、管理費や共益費等の名目で得ている定額の収入を含みます。
・将来にわたり予定賃料収入が確実に得られることを保証するものではありません。
(ご注意)
価格などの上記の内容は、変更になっている場合があります。
最新の情報は担当の営業センターへお問い合わせください。

未完成物件の場合の築年月は、工事完了予定年月として表示しています。

お問い合わせ

電話でのお問い合わせ

荻窪センター

0120-190-324(通話料無料)

営業時間09:30~17:30定休日水曜日・祝日

住所〒167-0032 東京都杉並区天沼3丁目3番3号
澁澤荻窪ビル5階

最近閲覧した物件