物件詳細

一戸建て

神奈川県藤沢市 鵠沼海岸7丁目

所在地

神奈川県藤沢市 鵠沼海岸7丁目

交通

小田急電鉄江ノ島線 『鵠沼海岸』駅 徒歩8分
小田急電鉄江ノ島線 『本鵠沼』駅 徒歩12分

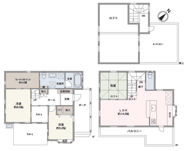
間取り

3LDK

築年月

2006年09月

建物面積

82.99㎡(約25.10坪)

土地面積

120㎡(約36.30坪):公簿

建物構造

木造 地上2階建て

  • 物件画像

    【現地外観写真】小田急江ノ島線「鵠沼海岸」駅まで徒歩8分など、2駅利用可能で便利な立地。自然豊かな環境で、穏やかな暮らしが叶います。

  • 物件画像

    土地面積はゆとりの120㎡。二方角地(北東・南東)で、風通しが良く、開放感のある立地です。

  • 物件画像

    【前面道路含む現地外観】前面道路は平坦で、高低差による負担が少ない道路状況です。車両・歩行ともに利用しやすい点が特徴です。

  • 物件画像

    【前面道路含む現地写真】敷地内にはカースペースが備えられています(車種による制限あり)。

  • 物件画像

    【ルーフバルコニーからの眺望】お住まいからの眺望です。高い建物がなく見晴らし良好です。遠くまで見渡せますね。

  • 間取り図
神奈川県藤沢市 鵠沼海岸7丁目間取り図
  • サムネイル1
  • サムネイル2
  • サムネイル3
  • サムネイル4
  • サムネイル5
  • 間取り図
電話でのお問い合わせ

藤沢センター(通話料無料)

0120-203-371(通話料無料)

〒251-0052 神奈川県藤沢市藤沢110番地

営業時間  09:30~17:30

定休日   水曜日・祝日

マイページ

おすすめポイント(アイコン上にマウスポインタを重ねると説明文が表示されます)

駅徒歩10分以内

最寄り駅まで徒歩10分以内の物件

角地

2つ以上の道路に囲まれた区画の物件

低層住居専用地域

第一種もしくは第二種低層住居専用地域内

物件概要

更新日:2026年04月23日 次回更新予定日:2026年05月07日
所在地
神奈川県藤沢市 鵠沼海岸7丁目

周辺地図 街の情報を見る

交通 小田急電鉄江ノ島線 『鵠沼海岸』駅 徒歩8分
小田急電鉄江ノ島線 『本鵠沼』駅 徒歩12分
価格 6,080万円 ローンシミュレーション
間取り 3LDK
建物面積 82.99㎡(約25.10坪) 土地面積 120㎡(約36.30坪):公簿
建物構造 木造 地上2階建て 築年月 2006年09月
土地権利 所有権 地目 宅地
都市計画 市街化区域 用途地域 第一種低層住居専用地域
建ぺい率 50% 容積率 80%
接道状況 北東 4m 公道
私道負担 駐車場
その他費用
建物状況 居住中 引渡し可能年月 相談
建築確認番号 取引態様 媒介
公法規制その他 国土法:否
備考 接道2:南東、幅員4.5m
※駐車スペースあり(車種による制限あり)※1階サンルーム未登記部分あり
物件番号 0026-01284105
建物状況調査日

掲載物件情報の表示について

(ご注意)
価格などの上記の内容は、変更になっている場合があります。
最新の情報は担当の営業センターへお問い合わせください。

未完成物件の場合の築年月は、工事完了予定年月として表示しています。

ローンシミュレーション(試算)

物件価格

6,080万円

年収

頭金

ボーナス支払額(年間)

返済期間

金利

月々のお支払金額万円

年収も含めた詳細なシミュレーションはこちら

より詳細に調べる
※シミュレーションでの試算(計算)結果は、あくまでも目安です。実際にローン契約をする際は、詳細を金融機関にご確認ください。
※実際のローン契約の際には、諸費用が別途かかります(手数料や印紙税、保証料など)。契約の際にご確認ください。

返済早見表

ボーナス 35年 30年 25年 20年 15年 10年
10万円
20万円
30万円
40万円
50万円
60万円
70万円
80万円
90万円
100万円

凡例

年収に占める返済比率 背景色 意味
1%未満 グレー 試算不可
1%以上25%未満 無理なく返済できる
25%以上40%未満 黄色 返済負担が大きい
40%以上 借入が難しい

※返済早見表での試算(計算)結果は、あくまでも目安です。実際にローン契約をする際は、詳細を金融機関にご確認ください。
※実際のローン契約の際には、諸費用が別途かかります(手数料や印紙税、保証料など)。契約の際にご確認ください。

ローンシミュレーション

お問い合わせ

電話でのお問い合わせ

藤沢センター((通話料無料))

0120-203-371((通話料無料))

営業時間09:30~17:30

定休日水曜日・祝日

住所〒251-0052 神奈川県藤沢市藤沢110番地

最近閲覧した物件