物件詳細

一戸建て

東京都町田市 相原町

所在地

東京都町田市 相原町

交通

JR横浜線 『相原』駅 徒歩12分
JR横浜線 『橋本』駅 徒歩28分

間取り

7LDK+納戸

築年月

1983年08月

建物面積

166.45㎡(約50.35坪)

土地面積

265.83㎡(約80.41坪):公簿

建物構造

鉄筋コンクリート造 地下1階付 地上2階建て

  • 物件画像

    【町田市相原町戸建て】高台ならではの陽当たりと眺望、心地よい風通しが魅力の住まい。閑静な住宅街に位置しており、落ち着いた暮らしが叶います。JR横浜線「相原」駅まで徒歩12分の立地。

  • 物件画像

    【前面道路含む現地写真】地元工務店設計の注文住宅。幅員約4.0mの南側道路に面しており、陽当たり良好な明るい住まいです。全居室6帖以上の広さが確保されています。

  • 物件画像

    【前面道路含む現地写真】自然豊かな環境で、四季の移ろいを身近に感じられます。高台に位置しているため周囲の視線が届きにくく、落ち着いて過ごせる住環境です。

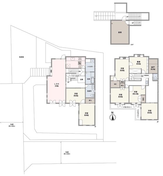
  • 間取り図
東京都町田市 相原町間取り図
  • サムネイル1
  • サムネイル2
  • サムネイル3
  • 間取り図
電話でのお問い合わせ

町田センター(通話料無料)

0120-899-644(通話料無料)

〒194-0022 東京都町田市森野1丁目23番19号
小田急町田森野ビル4階

営業時間  09:30~17:30

定休日   水曜日・祝日

マイページ

おすすめポイント(アイコン上にマウスポインタを重ねると説明文が表示されます)

南道路

前面道路が敷地の南側に面している物件

角地

2つ以上の道路に囲まれた区画の物件

低層住居専用地域

第一種もしくは第二種低層住居専用地域内

物件概要

更新日:2026年02月11日 次回更新予定日:2026年02月25日
所在地
東京都町田市 相原町

周辺地図 街の情報を見る

交通 JR横浜線 『相原』駅 徒歩12分
JR横浜線 『橋本』駅 徒歩28分
価格 2,050万円 ローンシミュレーション
間取り 7LDK+納戸
建物面積 166.45㎡(約50.35坪) 土地面積 265.83㎡(約80.41坪):公簿
建物構造 鉄筋コンクリート造 地下1階付 地上2階建て 築年月 1983年08月
土地権利 所有権 地目 宅地
都市計画 市街化区域 用途地域 第一種低層住居専用地域
建ぺい率 40% 容積率 80%
接道状況 南 4m 私道
私道負担 有、私道負担面積(別途):40.07㎡ 駐車場
その他費用
建物状況 居住中 引渡し可能年月 相談
建築確認番号 取引態様 媒介
公法規制その他 国土法:否
備考 接道2:西、幅員4.0m
※構造:鉄筋コンクリート・木造 ※第一種高度地区
物件番号 0026-01252178
建物状況調査日

掲載物件情報の表示について

(ご注意)
価格などの上記の内容は、変更になっている場合があります。
最新の情報は担当の営業センターへお問い合わせください。

未完成物件の場合の築年月は、工事完了予定年月として表示しています。

ローンシミュレーション(試算)

物件価格

2,050万円

年収

頭金

ボーナス支払額(年間)

返済期間

金利

月々のお支払金額万円

年収も含めた詳細なシミュレーションはこちら

より詳細に調べる
※シミュレーションでの試算(計算)結果は、あくまでも目安です。実際にローン契約をする際は、詳細を金融機関にご確認ください。
※実際のローン契約の際には、諸費用が別途かかります(手数料や印紙税、保証料など)。契約の際にご確認ください。

返済早見表

ボーナス 35年 30年 25年 20年 15年 10年
10万円
20万円
30万円
40万円
50万円
60万円
70万円
80万円
90万円
100万円

凡例

年収に占める返済比率 背景色 意味
1%未満 グレー 試算不可
1%以上25%未満 無理なく返済できる
25%以上40%未満 黄色 返済負担が大きい
40%以上 借入が難しい

※返済早見表での試算(計算)結果は、あくまでも目安です。実際にローン契約をする際は、詳細を金融機関にご確認ください。
※実際のローン契約の際には、諸費用が別途かかります(手数料や印紙税、保証料など)。契約の際にご確認ください。

ローンシミュレーション

お問い合わせ

電話でのお問い合わせ

町田センター((通話料無料))

0120-899-644((通話料無料))

営業時間09:30~17:30

定休日水曜日・祝日

住所〒194-0022 東京都町田市森野1丁目23番19号
小田急町田森野ビル4階

最近閲覧した物件