物件詳細

一戸建て

神奈川県相模原市中央区 上溝5丁目

所在地

神奈川県相模原市中央区 上溝5丁目

交通

JR相模線 『上溝』駅 徒歩9分

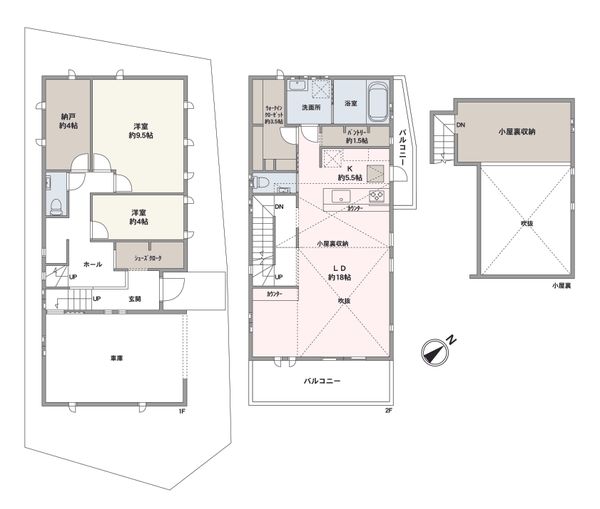
間取り

2LDK+納戸

築年月

2014年08月

建物面積

127.73㎡(約38.63坪)

土地面積

127.46㎡(約38.55坪):公簿

建物構造

木造 地上2階建て

  • 物件画像

    【外観写真】JR相模線「上溝」駅まで徒歩9分。開放的な角地に建つ、「2LDK+S」の戸建住宅。教育・買い物施設が徒歩10分圏内に揃う暮らしやすさが魅力の住環境です。ぜひ現地をご見学ください。

  • 物件画像

    【LDK(約23.5帖)】LDKは23帖超の広さ。さらに開放感が演出される吹抜や、特徴的なあらわし梁・アーチ状のデザインの壁などが施された、こだわりが感じられる空間です。便利なカウンター有。

  • 物件画像

    【LDK(約23.5帖)】3面採光が確保されたLDK。2階に配置されており、プライバシー面にも配慮された設計です。通行人からの視線を気にせず、団らん時間をお過ごしいただけます。

  • 物件画像

    【キッチン(約5.5帖)】キッチンは対面仕様。調理中にも、リビングやダイニングで過ごすご家族との楽しい時間を共有できます。IHクッキングヒーターや食器洗乾燥機・浄水器などが搭載されています。

  • 物件画像

    【キッチン(約5.5帖)】キッチンと同じデザインのカップボードと吊戸棚が設置された、統一感のある空間です。便利な床下収納や、北東側バルコニーへの出入りが可能な勝手口も設けられています。

  • 間取り図
神奈川県相模原市中央区 上溝5丁目間取り図
  • サムネイル1
  • サムネイル2
  • サムネイル3
  • サムネイル4
  • サムネイル5
  • 間取り図
電話でのお問い合わせ

町田センター(通話料無料)

0120-899-644(通話料無料)

〒194-0022 東京都町田市森野1丁目23番19号
小田急町田森野ビル4階

営業時間  09:30~17:30

定休日   水曜日・祝日

マイページ

おすすめポイント(アイコン上にマウスポインタを重ねると説明文が表示されます)

駅徒歩10分以内

最寄り駅まで徒歩10分以内の物件

角地

2つ以上の道路に囲まれた区画の物件

全面道路幅員6m以上

前面道路の幅員が6m以上の物件

物件概要

更新日:2026年02月14日 次回更新予定日:2026年02月28日
所在地
神奈川県相模原市中央区 上溝5丁目

周辺地図 街の情報を見る

交通 JR相模線 『上溝』駅 徒歩9分
価格 4,180万円 ローンシミュレーション
間取り 2LDK+納戸
建物面積 127.73㎡(約38.63坪) 土地面積 127.46㎡(約38.55坪):公簿
建物構造 木造 地上2階建て 築年月 2014年08月
土地権利 所有権 地目 宅地
都市計画 市街化区域 用途地域 第一種住居地域
建ぺい率 60% 容積率 200%
接道状況 北東 6.2m 公道
私道負担 駐車場
その他費用
建物状況 居住中 引渡し可能年月 相談
建築確認番号 取引態様 媒介
公法規制その他 国土法:否
備考 接道2:南東、幅員6.3m
・準防火地域・オール電化・車庫は電気自動車が充電可能
物件番号 0026-01252163
建物状況調査日

掲載物件情報の表示について

(ご注意)
価格などの上記の内容は、変更になっている場合があります。
最新の情報は担当の営業センターへお問い合わせください。

未完成物件の場合の築年月は、工事完了予定年月として表示しています。

ローンシミュレーション(試算)

物件価格

4,180万円

年収

頭金

ボーナス支払額(年間)

返済期間

金利

月々のお支払金額万円

年収も含めた詳細なシミュレーションはこちら

より詳細に調べる
※シミュレーションでの試算(計算)結果は、あくまでも目安です。実際にローン契約をする際は、詳細を金融機関にご確認ください。
※実際のローン契約の際には、諸費用が別途かかります(手数料や印紙税、保証料など)。契約の際にご確認ください。

返済早見表

ボーナス 35年 30年 25年 20年 15年 10年
10万円
20万円
30万円
40万円
50万円
60万円
70万円
80万円
90万円
100万円

凡例

年収に占める返済比率 背景色 意味
1%未満 グレー 試算不可
1%以上25%未満 無理なく返済できる
25%以上40%未満 黄色 返済負担が大きい
40%以上 借入が難しい

※返済早見表での試算(計算)結果は、あくまでも目安です。実際にローン契約をする際は、詳細を金融機関にご確認ください。
※実際のローン契約の際には、諸費用が別途かかります(手数料や印紙税、保証料など)。契約の際にご確認ください。

ローンシミュレーション

お問い合わせ

電話でのお問い合わせ

町田センター((通話料無料))

0120-899-644((通話料無料))

営業時間09:30~17:30

定休日水曜日・祝日

住所〒194-0022 東京都町田市森野1丁目23番19号
小田急町田森野ビル4階

最近閲覧した物件