物件詳細

一戸建て

神奈川県相模原市南区 相模台3丁目

所在地

神奈川県相模原市南区 相模台3丁目

交通

小田急電鉄小田原線 『小田急相模原』駅 徒歩15分
小田急電鉄小田原線 『相武台前』駅 徒歩19分

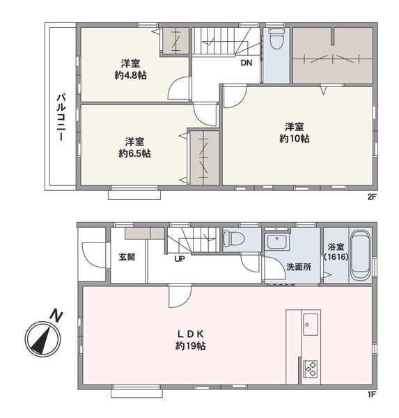
間取り

3LDK

築年月

2021年11月

建物面積

96.75㎡(約29.26坪)

土地面積

100.9㎡(約30.52坪):公簿

建物構造

木造 地上2階建て

  • 物件画像

    【相模原市南区相模台三丁目 戸建】2021年11月築、太陽光パネル・蓄電池が搭載された「3LDK」の住まい。カースペースは2台分確保されています(車種による)。

  • 物件画像

    【バルコニー】南西向きのバルコニーです。洋室2部屋にまたがる横幅が確保されており、洗濯物をゆったりと乾かせます。

  • 物件画像

    【バルコニーからの眺望】前面には視界を遮る高い建造物はありません。室内に清々しい空気を取り入れることができます。

  • 物件画像

    【駐車場】カースペースは2台分確保されています(車種による)。バイクや自転車置き場としてもご活用いただけます。

  • 物件画像

    【LDK/約19.0帖】約19.0帖のLDKは、ご家族でゆったり過ごせる開放的な空間。キッチンからリビング・ダイニング全体を見渡せるため、料理をしながらお子さまの様子も自然に見守れます。

  • 間取り図
神奈川県相模原市南区 相模台3丁目間取り図
  • サムネイル1
  • サムネイル2
  • サムネイル3
  • サムネイル4
  • サムネイル5
  • 間取り図
電話でのお問い合わせ

町田センター(通話料無料)

0120-899-644(通話料無料)

〒194-0022 東京都町田市森野1丁目23番19号
小田急町田森野ビル4階

営業時間  09:30~17:30

定休日   水曜日・祝日

マイページ

おすすめポイント(アイコン上にマウスポインタを重ねると説明文が表示されます)

築5年以内物件

築年5年以内の物件

全面道路幅員6m以上

前面道路の幅員が6m以上の物件

物件概要

更新日:2026年02月11日 次回更新予定日:2026年02月25日
所在地
神奈川県相模原市南区 相模台3丁目

周辺地図 街の情報を見る

交通 小田急電鉄小田原線 『小田急相模原』駅 徒歩15分
小田急電鉄小田原線 『相武台前』駅 徒歩19分
価格 4,880万円 ローンシミュレーション
間取り 3LDK
建物面積 96.75㎡(約29.26坪) 土地面積 100.9㎡(約30.52坪):公簿
建物構造 木造 地上2階建て 築年月 2021年11月
土地権利 所有権 地目 宅地
都市計画 市街化区域 用途地域 第一種中高層住居専用地域
建ぺい率 60% 容積率 200%
接道状況 南西 12m 公道
私道負担 駐車場
その他費用
建物状況 居住中 引渡し可能年月 相談
建築確認番号 第21KAK建変00094号 取引態様 媒介
公法規制その他 国土法:否
備考 ※宅地造成工事規制区域、準防火地域※道路斜線制限/規制あり※隣地斜線制限/規制あり※日影規制/高さ10メートルを超える建築物3H/2H/4m※敷地の一部に地役権設定あり
物件番号 0026-01252157
建物状況調査日

掲載物件情報の表示について

(ご注意)
価格などの上記の内容は、変更になっている場合があります。
最新の情報は担当の営業センターへお問い合わせください。

未完成物件の場合の築年月は、工事完了予定年月として表示しています。

ローンシミュレーション(試算)

物件価格

4,880万円

年収

頭金

ボーナス支払額(年間)

返済期間

金利

月々のお支払金額万円

年収も含めた詳細なシミュレーションはこちら

より詳細に調べる
※シミュレーションでの試算(計算)結果は、あくまでも目安です。実際にローン契約をする際は、詳細を金融機関にご確認ください。
※実際のローン契約の際には、諸費用が別途かかります(手数料や印紙税、保証料など)。契約の際にご確認ください。

返済早見表

ボーナス 35年 30年 25年 20年 15年 10年
10万円
20万円
30万円
40万円
50万円
60万円
70万円
80万円
90万円
100万円

凡例

年収に占める返済比率 背景色 意味
1%未満 グレー 試算不可
1%以上25%未満 無理なく返済できる
25%以上40%未満 黄色 返済負担が大きい
40%以上 借入が難しい

※返済早見表での試算(計算)結果は、あくまでも目安です。実際にローン契約をする際は、詳細を金融機関にご確認ください。
※実際のローン契約の際には、諸費用が別途かかります(手数料や印紙税、保証料など)。契約の際にご確認ください。

ローンシミュレーション

お問い合わせ

電話でのお問い合わせ

町田センター((通話料無料))

0120-899-644((通話料無料))

営業時間09:30~17:30

定休日水曜日・祝日

住所〒194-0022 東京都町田市森野1丁目23番19号
小田急町田森野ビル4階

最近閲覧した物件