物件詳細

一戸建て

東京都三鷹市 深大寺3丁目

所在地

東京都三鷹市 深大寺3丁目

交通

JR中央本線 『武蔵境』駅 徒歩19分
西武鉄道多摩川線 『新小金井』駅 徒歩17分

間取り

4LDK

築年月

2008年11月

建物面積

99.22㎡(約30.01坪)

土地面積

139.97㎡(約42.34坪):公簿

建物構造

木造 地上2階建て

  • 物件画像

    【三鷹市深大寺三丁目 戸建】JR中央線・西武多摩川線「武蔵境」駅まで徒歩19分、西武多摩川線「新小金井」駅まで徒歩17分。新宿や東京方面へダイレクトアクセスが叶う便利な立地です。

  • 物件画像

    【LDK/約15.4帖】ご家族が集うLDKは、3面採光の明るい空間。南向きですので、1日を通してたっぷりと光が舞い込みます。

  • 物件画像

    【LDK/約15.4帖】リビング部分には床暖房が搭載されています。足元から空間全体をじんわりと暖めてくれ、寒い季節も快適に過ごせそうです。

  • 物件画像

    【LDK/約15.4帖】ご家族で和やかに過ごすダイニングスペース。すぐ側に窓があるので、朝食・昼食時は明るい光が空間を包み込んでくれそうです。

  • 物件画像

    【LDK/約15.4帖】リビング・ダイニングはキッチンから見て横長のレイアウト。空間を緩やかにゾーニングでき、生活にメリハリが生まれそうです。

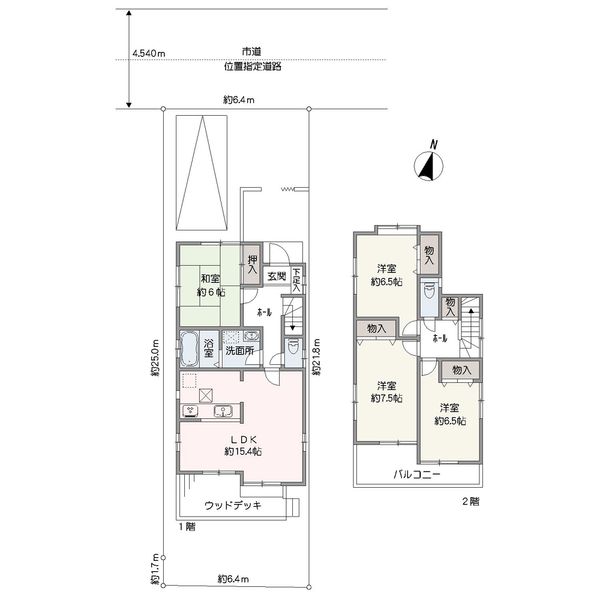
  • 間取り図
東京都三鷹市 深大寺3丁目間取り図
  • サムネイル1
  • サムネイル2
  • サムネイル3
  • サムネイル4
  • サムネイル5
  • 間取り図
電話でのお問い合わせ

吉祥寺営業部(通話料無料)

0120-021-722(通話料無料)

〒180-0003 東京都武蔵野市吉祥寺南町2丁目3番15号
吉祥寺フコク生命ビル4階

営業時間  09:30~17:30

定休日   水曜日・祝日

マイページ

おすすめポイント(アイコン上にマウスポインタを重ねると説明文が表示されます)

低層住居専用地域

第一種もしくは第二種低層住居専用地域内

物件概要

更新日:2026年02月11日 次回更新予定日:2026年02月25日
所在地
東京都三鷹市 深大寺3丁目

周辺地図 街の情報を見る

交通 JR中央本線 『武蔵境』駅 徒歩19分
西武鉄道多摩川線 『新小金井』駅 徒歩17分
価格 6,380万円 ローンシミュレーション
間取り 4LDK
建物面積 99.22㎡(約30.01坪) 土地面積 139.97㎡(約42.34坪):公簿
建物構造 木造 地上2階建て 築年月 2008年11月
土地権利 所有権 地目 宅地
都市計画 市街化区域 用途地域 第一種低層住居専用地域
建ぺい率 40% 容積率 80%
接道状況 北 4m 公道
私道負担 駐車場
その他費用
建物状況 居住中 引渡し可能年月 相談
建築確認番号 取引態様 媒介
公法規制その他 国土法:否
備考
物件番号 0026-01252131
建物状況調査日

掲載物件情報の表示について

(ご注意)
価格などの上記の内容は、変更になっている場合があります。
最新の情報は担当の営業センターへお問い合わせください。

未完成物件の場合の築年月は、工事完了予定年月として表示しています。

ローンシミュレーション(試算)

物件価格

6,380万円

年収

頭金

ボーナス支払額(年間)

返済期間

金利

月々のお支払金額万円

年収も含めた詳細なシミュレーションはこちら

より詳細に調べる
※シミュレーションでの試算(計算)結果は、あくまでも目安です。実際にローン契約をする際は、詳細を金融機関にご確認ください。
※実際のローン契約の際には、諸費用が別途かかります(手数料や印紙税、保証料など)。契約の際にご確認ください。

返済早見表

ボーナス 35年 30年 25年 20年 15年 10年
10万円
20万円
30万円
40万円
50万円
60万円
70万円
80万円
90万円
100万円

凡例

年収に占める返済比率 背景色 意味
1%未満 グレー 試算不可
1%以上25%未満 無理なく返済できる
25%以上40%未満 黄色 返済負担が大きい
40%以上 借入が難しい

※返済早見表での試算(計算)結果は、あくまでも目安です。実際にローン契約をする際は、詳細を金融機関にご確認ください。
※実際のローン契約の際には、諸費用が別途かかります(手数料や印紙税、保証料など)。契約の際にご確認ください。

ローンシミュレーション

お問い合わせ

電話でのお問い合わせ

吉祥寺営業部((通話料無料))

0120-021-722((通話料無料))

営業時間09:30~17:30

定休日水曜日・祝日

住所〒180-0003 東京都武蔵野市吉祥寺南町2丁目3番15号
吉祥寺フコク生命ビル4階

最近閲覧した物件