物件詳細

一戸建て

東京都立川市 若葉町3丁目

所在地

東京都立川市 若葉町3丁目

交通

JR中央本線 『国立』駅 バス15分 バス停『変電所前』 徒歩9分

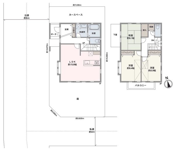
間取り

3LDK

築年月

2001年08月

建物面積

86.1㎡(約26.04坪)

土地面積

109㎡(約32.97坪):公簿

建物構造

木造 地上2階建て

  • 物件画像

    2025年12月撮影

  • 物件画像

    2025年12月撮影

  • 物件画像

    西側(2025年12月撮影)

  • 物件画像

    南側(2025年12月撮影)

  • 間取り図
東京都立川市 若葉町3丁目間取り図
  • サムネイル1
  • サムネイル2
  • サムネイル3
  • サムネイル4
  • 間取り図
電話でのお問い合わせ

吉祥寺営業部(通話料無料)

0120-021-722(通話料無料)

〒180-0003 東京都武蔵野市吉祥寺南町2丁目3番15号
吉祥寺フコク生命ビル4階

営業時間  09:30~17:30

定休日   水曜日・祝日

マイページ

おすすめポイント(アイコン上にマウスポインタを重ねると説明文が表示されます)

南道路

前面道路が敷地の南側に面している物件

全面道路幅員6m以上

前面道路の幅員が6m以上の物件

低層住居専用地域

第一種もしくは第二種低層住居専用地域内

物件概要

更新日:2026年02月11日 次回更新予定日:2026年02月25日
所在地
東京都立川市 若葉町3丁目

周辺地図 街の情報を見る

交通 JR中央本線 『国立』駅 バス15分 バス停『変電所前』 徒歩9分
価格 2,860万円 ローンシミュレーション
間取り 3LDK
建物面積 86.1㎡(約26.04坪) 土地面積 109㎡(約32.97坪):公簿
建物構造 木造 地上2階建て 築年月 2001年08月
土地権利 所有権 地目 宅地
都市計画 市街化区域 用途地域 第一種低層住居専用地域
建ぺい率 40% 容積率 80%
接道状況 西 6m 公道
私道負担 駐車場
その他費用
建物状況 空家 引渡し可能年月 相談
建築確認番号 取引態様 媒介
公法規制その他 国土法:否
備考 接道2:南、幅員4.0m
※私道負担:29.95㎡×1/8、29.98㎡×1/8※建ぺい率は角地につき50%
物件番号 0026-01252057
建物状況調査日

掲載物件情報の表示について

(ご注意)
価格などの上記の内容は、変更になっている場合があります。
最新の情報は担当の営業センターへお問い合わせください。

未完成物件の場合の築年月は、工事完了予定年月として表示しています。

ローンシミュレーション(試算)

物件価格

2,860万円

年収

頭金

ボーナス支払額(年間)

返済期間

金利

月々のお支払金額万円

年収も含めた詳細なシミュレーションはこちら

より詳細に調べる
※シミュレーションでの試算(計算)結果は、あくまでも目安です。実際にローン契約をする際は、詳細を金融機関にご確認ください。
※実際のローン契約の際には、諸費用が別途かかります(手数料や印紙税、保証料など)。契約の際にご確認ください。

返済早見表

ボーナス 35年 30年 25年 20年 15年 10年
10万円
20万円
30万円
40万円
50万円
60万円
70万円
80万円
90万円
100万円

凡例

年収に占める返済比率 背景色 意味
1%未満 グレー 試算不可
1%以上25%未満 無理なく返済できる
25%以上40%未満 黄色 返済負担が大きい
40%以上 借入が難しい

※返済早見表での試算(計算)結果は、あくまでも目安です。実際にローン契約をする際は、詳細を金融機関にご確認ください。
※実際のローン契約の際には、諸費用が別途かかります(手数料や印紙税、保証料など)。契約の際にご確認ください。

ローンシミュレーション

お問い合わせ

電話でのお問い合わせ

吉祥寺営業部((通話料無料))

0120-021-722((通話料無料))

営業時間09:30~17:30

定休日水曜日・祝日

住所〒180-0003 東京都武蔵野市吉祥寺南町2丁目3番15号
吉祥寺フコク生命ビル4階

最近閲覧した物件