物件詳細

土地

北海道札幌市手稲区 前田一条7丁目

所在地

北海道札幌市手稲区 前田一条7丁目

交通

JR函館本線 『稲積公園』駅 徒歩10分
札幌市東西線 『宮の沢』駅 バス19分 バス停『富丘小学校前』 徒歩7分

土地面積

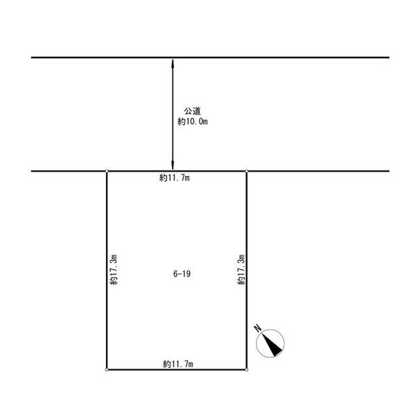
203.29㎡(約61.49坪):公簿

建ぺい率/容積率

40%/80%

  • 物件画像

    現地外観写真

  • 物件画像

    現地土地写真

  • 物件画像

    現地土地写真

  • 物件画像

    現地土地写真

  • 物件画像

    現地土地写真

  • 間取り図
北海道札幌市手稲区 前田一条7丁目間取り図
  • サムネイル1
  • サムネイル2
  • サムネイル3
  • サムネイル4
  • サムネイル5
  • 間取り図
電話でのお問い合わせ

札幌センター(通話料無料)

0120-165-711(通話料無料)

〒060-0003 北海道札幌市中央区北三条西3丁目1番地44
ヒューリックスクエア札幌6階

営業時間  09:00~17:00

定休日   日曜日・祝日

マイページ

おすすめポイント(アイコン上にマウスポインタを重ねると説明文が表示されます)

駅徒歩10分以内

最寄り駅まで徒歩10分以内の物件

間口10m以上

敷地の間口が前面道路に10m以上接している物件

全面道路幅員6m以上

前面道路の幅員が6m以上の物件

低層住居専用地域

第一種もしくは第二種低層住居専用地域内

物件概要

更新日:2026年05月19日 次回更新予定日:2026年06月02日
所在地
北海道札幌市手稲区 前田一条7丁目

周辺地図 街の情報を見る

交通 JR函館本線 『稲積公園』駅 徒歩10分
札幌市東西線 『宮の沢』駅 バス19分 バス停『富丘小学校前』 徒歩7分
価格 2,080万円 ローンシミュレーション
土地面積 203.29㎡(約61.49坪):公簿
土地権利 所有権 地目 宅地
都市計画 市街化区域 用途地域 第一種低層住居専用地域
建ぺい率 40% 容積率 80%
接道状況 北東 10m 公道
私道負担
土地現況 古家有 建築条件
その他費用
引渡時期 相談 取引態様 媒介
公法規制その他 更地渡し、国土法:否
備考
物件番号 0022-01223249

掲載物件情報の表示について

(ご注意)
価格などの上記の内容は、変更になっている場合があります。
最新の情報は担当の営業センターへお問い合わせください。

ローンシミュレーション(試算)

物件価格

2,080万円

年収

頭金

ボーナス支払額(年間)

返済期間

金利

月々のお支払金額万円

年収も含めた詳細なシミュレーションはこちら

より詳細に調べる
※シミュレーションでの試算(計算)結果は、あくまでも目安です。実際にローン契約をする際は、詳細を金融機関にご確認ください。
※実際のローン契約の際には、諸費用が別途かかります(手数料や印紙税、保証料など)。契約の際にご確認ください。

返済早見表

ボーナス 35年 30年 25年 20年 15年 10年
10万円
20万円
30万円
40万円
50万円
60万円
70万円
80万円
90万円
100万円

凡例

年収に占める返済比率 背景色 意味
1%未満 グレー 試算不可
1%以上25%未満 無理なく返済できる
25%以上40%未満 黄色 返済負担が大きい
40%以上 借入が難しい

※返済早見表での試算(計算)結果は、あくまでも目安です。実際にローン契約をする際は、詳細を金融機関にご確認ください。
※実際のローン契約の際には、諸費用が別途かかります(手数料や印紙税、保証料など)。契約の際にご確認ください。

ローンシミュレーション

お問い合わせ

電話でのお問い合わせ

札幌センター((通話料無料))

0120-165-711((通話料無料))

営業時間09:00~17:00

定休日日曜日・祝日

住所〒060-0003 北海道札幌市中央区北三条西3丁目1番地44
ヒューリックスクエア札幌6階

最近閲覧した物件