物件詳細

一戸建て

東京都新宿区 西早稲田1丁目

価格

1億4,480万円(消費税込) ローンシミュレーション

ローンシミュレーション

所在地

東京都新宿区 西早稲田1丁目

交通

東京メトロ東西線 『早稲田』駅 徒歩3分
東京メトロ副都心線 『西早稲田』駅 徒歩14分

間取り

4LDK

築年月

1999年10月

建物面積

140.37㎡(約42.46坪)

土地面積

68.59㎡(約20.74坪):公簿

建物構造

鉄骨鉄筋コンクリート造 地上4階建て

  • 物件画像

    日々の疲れを癒す高機能浴室

  • 物件画像

    格調高い洗練されたHANSSEM社製のキッチン

  • 物件画像

    高級感ある面材を使用した洗面台

  • 物件画像

    明るい玄関

  • 物件画像

    縦列駐車可能な車庫(車種によります)

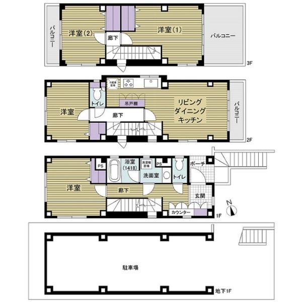
  • 間取り図
東京都新宿区 西早稲田1丁目間取り図
  • サムネイル1
  • サムネイル2
  • サムネイル3
  • サムネイル4
  • サムネイル5
  • 間取り図
電話でのお問い合わせ

新宿営業部(通話料無料)

0120-466-630(通話料無料)

〒163-1517 東京都新宿区西新宿1丁目6番1号
新宿エルタワー17階

営業時間  09:30~17:30

定休日   水曜日・祝日

マイページ

おすすめポイント(アイコン上にマウスポインタを重ねると説明文が表示されます)

駅徒歩5分以内

最寄り駅まで徒歩5分以内の物件

物件概要

更新日:2026年04月13日 次回更新予定日:2026年04月27日
所在地
東京都新宿区 西早稲田1丁目

周辺地図 街の情報を見る

交通 東京メトロ東西線 『早稲田』駅 徒歩3分
東京メトロ副都心線 『西早稲田』駅 徒歩14分
価格 1億4,480万円(消費税込) ローンシミュレーション
間取り 4LDK
建物面積 140.37㎡(約42.46坪) 土地面積 68.59㎡(約20.74坪):公簿
建物構造 鉄骨鉄筋コンクリート造 地上4階建て 築年月 1999年10月
土地権利 所有権 地目 宅地
都市計画 市街化区域 用途地域 第一種住居地域
建ぺい率 60% 容積率 400%
接道状況 南東 4m 私道
私道負担 有、私道負担面積(別途):287.00㎡ 駐車場
その他費用
建物状況 空家 引渡し可能年月 相談
建築確認番号 取引態様 媒介
公法規制その他
備考
物件番号 0018-01278022
建物状況調査日

掲載物件情報の表示について

(ご注意)
価格などの上記の内容は、変更になっている場合があります。
最新の情報は担当の営業センターへお問い合わせください。

未完成物件の場合の築年月は、工事完了予定年月として表示しています。

ローンシミュレーション(試算)

物件価格

1億4,480万円(消費税込)

年収

頭金

ボーナス支払額(年間)

返済期間

金利

月々のお支払金額万円

年収も含めた詳細なシミュレーションはこちら

より詳細に調べる
※シミュレーションでの試算(計算)結果は、あくまでも目安です。実際にローン契約をする際は、詳細を金融機関にご確認ください。
※実際のローン契約の際には、諸費用が別途かかります(手数料や印紙税、保証料など)。契約の際にご確認ください。

返済早見表

ボーナス 35年 30年 25年 20年 15年 10年
10万円
20万円
30万円
40万円
50万円
60万円
70万円
80万円
90万円
100万円

凡例

年収に占める返済比率 背景色 意味
1%未満 グレー 試算不可
1%以上25%未満 無理なく返済できる
25%以上40%未満 黄色 返済負担が大きい
40%以上 借入が難しい

※返済早見表での試算(計算)結果は、あくまでも目安です。実際にローン契約をする際は、詳細を金融機関にご確認ください。
※実際のローン契約の際には、諸費用が別途かかります(手数料や印紙税、保証料など)。契約の際にご確認ください。

ローンシミュレーション

お問い合わせ

電話でのお問い合わせ

新宿営業部((通話料無料))

0120-466-630((通話料無料))

営業時間09:30~17:30

定休日水曜日・祝日

住所〒163-1517 東京都新宿区西新宿1丁目6番1号
新宿エルタワー17階

最近閲覧した物件