物件詳細

一戸建て

京都府京都市山科区 西野山桜ノ馬場町

所在地

京都府京都市山科区 西野山桜ノ馬場町

交通

京都市東西線 『小野』駅 徒歩22分
京都市東西線 『椥辻』駅 徒歩23分

間取り

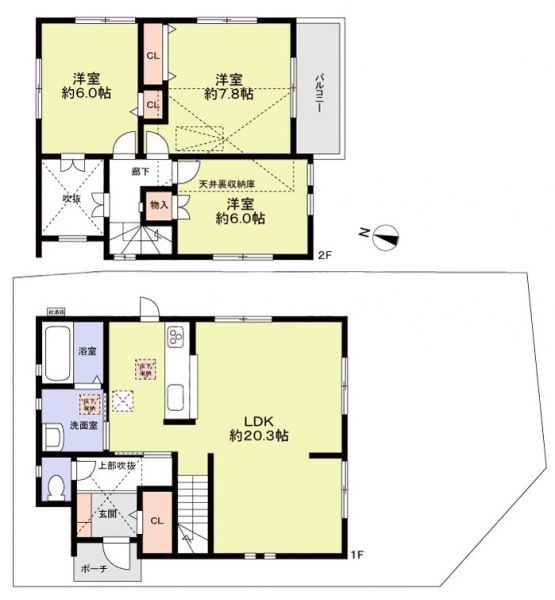
3LDK

築年月

2017年05月

建物面積

89.84㎡(約27.17坪)

土地面積

114.15㎡(約34.53坪):公簿

建物構造

木造 地上2階建て

  • 物件画像

  • 物件画像

  • 物件画像

    西側道路

  • 物件画像

    南側道路

  • 間取り図
京都府京都市山科区 西野山桜ノ馬場町間取り図
  • サムネイル1
  • サムネイル2
  • サムネイル3
  • サムネイル4
  • 間取り図
電話でのお問い合わせ

京都営業部(通話料無料)

0120-381-112(通話料無料)

〒600-8008 京都府京都市下京区四条通烏丸東入長刀鉾町20番地
四条烏丸FTスクエア1階

営業時間  09:30~17:30

定休日   水曜日・祝日

マイページ

おすすめポイント(アイコン上にマウスポインタを重ねると説明文が表示されます)

築10年以内物件

築年10年以内の物件

南道路

前面道路が敷地の南側に面している物件

角地

2つ以上の道路に囲まれた区画の物件

間口10m以上

敷地の間口が前面道路に10m以上接している物件

全面道路幅員6m以上

前面道路の幅員が6m以上の物件

低層住居専用地域

第一種もしくは第二種低層住居専用地域内

物件概要

更新日:2026年04月22日 次回更新予定日:2026年05月06日
所在地
京都府京都市山科区 西野山桜ノ馬場町

周辺地図 街の情報を見る

交通 京都市東西線 『小野』駅 徒歩22分
京都市東西線 『椥辻』駅 徒歩23分
価格 2,880万円 ローンシミュレーション
間取り 3LDK
建物面積 89.84㎡(約27.17坪) 土地面積 114.15㎡(約34.53坪):公簿
建物構造 木造 地上2階建て 築年月 2017年05月
土地権利 所有権 地目 宅地
都市計画 市街化区域 用途地域 第一種低層住居専用地域
建ぺい率 50% 容積率 80%
接道状況 西 6m 私道
私道負担 駐車場
その他費用
建物状況 空家 引渡し可能年月 相談
建築確認番号 取引態様 媒介
公法規制その他 敷地面積の最低限度100平米、国土法:否
備考 接道2:南、幅員7.1m
物件番号 0017-01286466
建物状況調査日

掲載物件情報の表示について

(ご注意)
価格などの上記の内容は、変更になっている場合があります。
最新の情報は担当の営業センターへお問い合わせください。

未完成物件の場合の築年月は、工事完了予定年月として表示しています。

ローンシミュレーション(試算)

物件価格

2,880万円

年収

頭金

ボーナス支払額(年間)

返済期間

金利

月々のお支払金額万円

年収も含めた詳細なシミュレーションはこちら

より詳細に調べる
※シミュレーションでの試算(計算)結果は、あくまでも目安です。実際にローン契約をする際は、詳細を金融機関にご確認ください。
※実際のローン契約の際には、諸費用が別途かかります(手数料や印紙税、保証料など)。契約の際にご確認ください。

返済早見表

ボーナス 35年 30年 25年 20年 15年 10年
10万円
20万円
30万円
40万円
50万円
60万円
70万円
80万円
90万円
100万円

凡例

年収に占める返済比率 背景色 意味
1%未満 グレー 試算不可
1%以上25%未満 無理なく返済できる
25%以上40%未満 黄色 返済負担が大きい
40%以上 借入が難しい

※返済早見表での試算(計算)結果は、あくまでも目安です。実際にローン契約をする際は、詳細を金融機関にご確認ください。
※実際のローン契約の際には、諸費用が別途かかります(手数料や印紙税、保証料など)。契約の際にご確認ください。

ローンシミュレーション

お問い合わせ

電話でのお問い合わせ

京都営業部((通話料無料))

0120-381-112((通話料無料))

営業時間09:30~17:30

定休日水曜日・祝日

住所〒600-8008 京都府京都市下京区四条通烏丸東入長刀鉾町20番地
四条烏丸FTスクエア1階

最近閲覧した物件