物件詳細

マンション

サーパス段原

所在地

広島県広島市南区 段原山崎1丁目

交通

JR山陽本線 『広島』駅 徒歩23分

間取り

3LDK

築年月

2014年02月

専有面積

88.29㎡(約26.70坪):壁芯

所在階

11階部分

  • 物件画像

    地上11階建、総戸数42戸のマンションです

  • 物件画像

    玄関には窓があり自然光を採り入れることができます

  • 物件画像

    優しい色合いが広さを感じさせる、明るく伸びやかな廊下空間

  • 物件画像

    洗面室にバルコニーへの勝手口を備え、快適な家事動線です

  • 物件画像

    温かみのある木目調パネルが心地よい、快適な浴室空間(暖房機能付きの浴室換気乾燥機搭載)

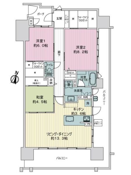
  • 間取り図
サーパス段原間取り図
  • サムネイル1
  • サムネイル2
  • サムネイル3
  • サムネイル4
  • サムネイル5
  • 間取り図
電話でのお問い合わせ

広島センター(通話料無料)

0120-324-484(通話料無料)

〒730-0031 広島県広島市中区紙屋町2丁目1番22号
広島興銀ビル6階

営業時間  09:30~17:30

定休日   水曜日・祝日

マイページ

おすすめポイント(アイコン上にマウスポインタを重ねると説明文が表示されます)

南向き(南東・南西含む)

主要採光面が南向き(南東・南西含む)の物件

物件概要

更新日:2026年04月13日 次回更新予定日:2026年04月27日
マンション名 サーパス段原
所在地
広島県広島市南区 段原山崎1丁目

周辺地図 街の情報を見る

交通 JR山陽本線 『広島』駅 徒歩23分
価格 5,980万円 ローンシミュレーション
間取り 3LDK 専有面積 88.29㎡(約26.70坪):壁芯
建物構造 鉄筋コンクリート造 地上15階 所在階 11階部分
バルコニー有無 バルコニー面積 32.66㎡
専用庭面積 バルコニー方向 南東
築年月 2014年02月 総戸数 42戸
都市計画 用途地域 第二種住居地域
土地権利 所有権
管理形態 管理会社に全部委託 管理員の勤務形態 日勤
管理費 9,300円/月 修繕積立金 15,900円/月
駐車場
その他費用 インターネット保守管理費、専有部警備SOS24利用料、エスコートサービス利用料、電気温水器リース料:7828円/月
建物状況 居住中 引渡し可能年月 2026年06月 下旬
建築確認番号 取引態様 媒介
公法規制その他 日勤管理 家具・什器および内装費用等は価格に含まれておりません。
備考
物件番号 0015-01256092
建物状況調査日

掲載物件情報の表示について

(ご注意)
価格などの上記の内容は、変更になっている場合があります。
最新の情報は担当の営業センターへお問い合わせください。

未完成物件の場合の築年月は、工事完了予定年月として表示しています。

ローンシミュレーション(試算)

物件価格

5,980万円

年収

頭金

ボーナス支払額(年間)

返済期間

金利

月々のお支払金額万円

年収も含めた詳細なシミュレーションはこちら

より詳細に調べる
※シミュレーションでの試算(計算)結果は、あくまでも目安です。実際にローン契約をする際は、詳細を金融機関にご確認ください。
※実際のローン契約の際には、諸費用が別途かかります(手数料や印紙税、保証料など)。契約の際にご確認ください。

返済早見表

ボーナス 35年 30年 25年 20年 15年 10年
10万円
20万円
30万円
40万円
50万円
60万円
70万円
80万円
90万円
100万円

凡例

年収に占める返済比率 背景色 意味
1%未満 グレー 試算不可
1%以上25%未満 無理なく返済できる
25%以上40%未満 黄色 返済負担が大きい
40%以上 借入が難しい

※返済早見表での試算(計算)結果は、あくまでも目安です。実際にローン契約をする際は、詳細を金融機関にご確認ください。
※実際のローン契約の際には、諸費用が別途かかります(手数料や印紙税、保証料など)。契約の際にご確認ください。

ローンシミュレーション

お問い合わせ

電話でのお問い合わせ

広島センター((通話料無料))

0120-324-484((通話料無料))

営業時間09:30~17:30

定休日水曜日・祝日

住所〒730-0031 広島県広島市中区紙屋町2丁目1番22号
広島興銀ビル6階

最近閲覧した物件