物件詳細

一戸建て

愛知県名古屋市瑞穂区 下山町1丁目

所在地

愛知県名古屋市瑞穂区 下山町1丁目

交通

名古屋市名城線 『瑞穂運動場東』駅 徒歩7分
名古屋市名城線 『総合リハビリセンター』駅 徒歩10分

間取り

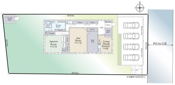
2LDK

築年月

2019年10月

建物面積

141.6㎡(約42.83坪)

土地面積

581.81㎡(約175.99坪):公簿

建物構造

木造 地上1階建て

  • 物件画像

    外観

  • 物件画像

    その他外観

  • 物件画像

    駐車スペース

  • 物件画像

    玄関

  • 物件画像

    その他外観

  • 間取り図
愛知県名古屋市瑞穂区 下山町1丁目間取り図
  • サムネイル1
  • サムネイル2
  • サムネイル3
  • サムネイル4
  • サムネイル5
  • 間取り図
電話でのお問い合わせ

名古屋営業部(通話料無料)

0120-324-814(通話料無料)

〒460-0008 愛知県名古屋市中区栄3丁目3番21号
セントライズ栄4階

営業時間  09:30~17:30

定休日   水曜日・祝日

マイページ

おすすめポイント(アイコン上にマウスポインタを重ねると説明文が表示されます)

築10年以内物件

築年10年以内の物件

駅徒歩10分以内

最寄り駅まで徒歩10分以内の物件

間口10m以上

敷地の間口が前面道路に10m以上接している物件

全面道路幅員6m以上

前面道路の幅員が6m以上の物件

低層住居専用地域

第一種もしくは第二種低層住居専用地域内

物件概要

更新日:2026年04月23日 次回更新予定日:2026年05月07日
所在地
愛知県名古屋市瑞穂区 下山町1丁目

周辺地図 街の情報を見る

交通 名古屋市名城線 『瑞穂運動場東』駅 徒歩7分
名古屋市名城線 『総合リハビリセンター』駅 徒歩10分
価格 1億8,800万円 ローンシミュレーション
間取り 2LDK
建物面積 141.6㎡(約42.83坪) 土地面積 581.81㎡(約175.99坪):公簿
建物構造 木造 地上1階建て 築年月 2019年10月
土地権利 所有権 地目 宅地
都市計画 市街化区域 用途地域 第一種低層住居専用地域
建ぺい率 30% 容積率 100%
接道状況 東 6.3m 公道
私道負担 駐車場
その他費用
建物状況 空家 引渡し可能年月 相談
建築確認番号 取引態様 媒介
公法規制その他 国土法:否
備考 間取り:2LDK+WIC/
カースペース有(4台)車種による制限有/第一種風致地区/緑化地域/外壁後退距離1.5m/10m高度地区/宅地造成及び特定盛土等規制法/都市機能誘導区域外/居住誘導区域内/附属建物(未登記)…種類:物置、建物構造:木造瓦葺平家建、建物面積:8.00m2(約2.42坪)、建築年月:1991年1月※固定資産税評価証明書参照/
物件番号 0014-01264205
建物状況調査日

掲載物件情報の表示について

(ご注意)
価格などの上記の内容は、変更になっている場合があります。
最新の情報は担当の営業センターへお問い合わせください。

未完成物件の場合の築年月は、工事完了予定年月として表示しています。

ローンシミュレーション(試算)

物件価格

1億8,800万円

年収

頭金

ボーナス支払額(年間)

返済期間

金利

月々のお支払金額万円

年収も含めた詳細なシミュレーションはこちら

より詳細に調べる
※シミュレーションでの試算(計算)結果は、あくまでも目安です。実際にローン契約をする際は、詳細を金融機関にご確認ください。
※実際のローン契約の際には、諸費用が別途かかります(手数料や印紙税、保証料など)。契約の際にご確認ください。

返済早見表

ボーナス 35年 30年 25年 20年 15年 10年
10万円
20万円
30万円
40万円
50万円
60万円
70万円
80万円
90万円
100万円

凡例

年収に占める返済比率 背景色 意味
1%未満 グレー 試算不可
1%以上25%未満 無理なく返済できる
25%以上40%未満 黄色 返済負担が大きい
40%以上 借入が難しい

※返済早見表での試算(計算)結果は、あくまでも目安です。実際にローン契約をする際は、詳細を金融機関にご確認ください。
※実際のローン契約の際には、諸費用が別途かかります(手数料や印紙税、保証料など)。契約の際にご確認ください。

ローンシミュレーション

お問い合わせ

電話でのお問い合わせ

名古屋営業部((通話料無料))

0120-324-814((通話料無料))

営業時間09:30~17:30

定休日水曜日・祝日

住所〒460-0008 愛知県名古屋市中区栄3丁目3番21号
セントライズ栄4階

最近閲覧した物件