物件詳細

一戸建て

大阪府大阪市中央区 上本町西2丁目

所在地

大阪府大阪市中央区 上本町西2丁目

交通

大阪メトロ谷町線 『谷町六丁目』駅 徒歩4分
大阪メトロ長堀鶴見緑地線 『谷町六丁目』駅 徒歩4分

間取り

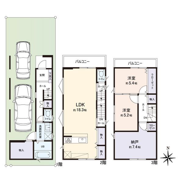
2LDK+納戸

築年月

2015年07月

建物面積

93.87㎡(約28.39坪)

土地面積

71.19㎡(約21.53坪):公簿

建物構造

木造 地上3階建て

  • 物件画像

    外観

  • 物件画像

    LD

  • 物件画像

    キッチン

  • 物件画像

    キッチン

  • 物件画像

    浴室

  • 間取り図
大阪府大阪市中央区 上本町西2丁目間取り図
  • サムネイル1
  • サムネイル2
  • サムネイル3
  • サムネイル4
  • サムネイル5
  • 間取り図
電話でのお問い合わせ

大阪営業第一部(通話料無料)

0120-208-203(通話料無料)

〒541-0053 大阪府大阪市中央区本町3丁目6番4号
Osaka Metro 本町ビル4階

営業時間  09:30~17:30

定休日   水曜日・祝日

マイページ

おすすめポイント(アイコン上にマウスポインタを重ねると説明文が表示されます)

駅徒歩5分以内

最寄り駅まで徒歩5分以内の物件

物件概要

更新日:2025年11月14日 次回更新予定日:2025年11月28日
所在地
大阪府大阪市中央区 上本町西2丁目

周辺地図 街の情報を見る

交通 大阪メトロ谷町線 『谷町六丁目』駅 徒歩4分
大阪メトロ長堀鶴見緑地線 『谷町六丁目』駅 徒歩4分
価格 8,790万円 ローンシミュレーション
間取り 2LDK+納戸
建物面積 93.87㎡(約28.39坪) 土地面積 71.19㎡(約21.53坪):公簿
建物構造 木造 地上3階建て 築年月 2015年07月
土地権利 所有権 地目 宅地
都市計画 市街化区域 用途地域 第二種住居地域
建ぺい率 80% 容積率 240%
接道状況 北 4m 私道
私道負担 有、私道負担面積(別途):107.09㎡ 駐車場
その他費用
建物状況 居住中 引渡し可能年月 相談
建築確認番号 取引態様 媒介
公法規制その他 ※写真は令和7年10月撮影 ※家具、調度品は販売価格に含まれません。、国土法:否
備考 ・3駅4路線利用可能・LDK18畳以上・駐車場2台可能
・上町台地に存する平成27年築の戸建 ・大阪メトロ谷町線・鶴見緑地線「谷町六丁目」駅・・・約315メートル(徒歩約4分) ・近鉄大阪線「大阪上本町」駅・・・約910メートル(徒歩約12分) ・大阪メトロ千日前線「谷町九丁目」駅 約910メートル(徒歩12分)
物件番号 0014-01182344
建物状況調査日

掲載物件情報の表示について

(ご注意)
価格などの上記の内容は、変更になっている場合があります。
最新の情報は担当の営業センターへお問い合わせください。

未完成物件の場合の築年月は、工事完了予定年月として表示しています。

ローンシミュレーション(試算)

物件価格

8,790万円

年収

頭金

ボーナス支払額(年間)

返済期間

金利

月々のお支払金額万円

年収も含めた詳細なシミュレーションはこちら

より詳細に調べる
※シミュレーションでの試算(計算)結果は、あくまでも目安です。実際にローン契約をする際は、詳細を金融機関にご確認ください。
※実際のローン契約の際には、諸費用が別途かかります(手数料や印紙税、保証料など)。契約の際にご確認ください。

返済早見表

ボーナス 35年 30年 25年 20年 15年 10年
10万円
20万円
30万円
40万円
50万円
60万円
70万円
80万円
90万円
100万円

凡例

年収に占める返済比率 背景色 意味
1%未満 グレー 試算不可
1%以上25%未満 無理なく返済できる
25%以上40%未満 黄色 返済負担が大きい
40%以上 借入が難しい

※返済早見表での試算(計算)結果は、あくまでも目安です。実際にローン契約をする際は、詳細を金融機関にご確認ください。
※実際のローン契約の際には、諸費用が別途かかります(手数料や印紙税、保証料など)。契約の際にご確認ください。

ローンシミュレーション

お問い合わせ

電話でのお問い合わせ

大阪営業第一部((通話料無料))

0120-208-203((通話料無料))

営業時間09:30~17:30

定休日水曜日・祝日

住所〒541-0053 大阪府大阪市中央区本町3丁目6番4号
Osaka Metro 本町ビル4階

最近閲覧した物件