物件詳細

一戸建て

兵庫県西宮市 笠屋町

所在地

兵庫県西宮市 笠屋町

交通

阪神電鉄武庫川線 『東鳴尾』駅 徒歩5分
阪神電鉄本線 『鳴尾・武庫川女子大前』駅 徒歩15分

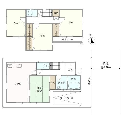
間取り

4LDK

築年月

2001年03月

建物面積

89.19㎡(約26.97坪)

土地面積

80.44㎡(約24.33坪):公簿

建物構造

木造 地上2階建て

  • 物件画像

    外観

  • 物件画像

    LDK

  • 物件画像

    LDK

  • 物件画像

    LDK

  • 物件画像

    キッチン

  • 間取り図
兵庫県西宮市 笠屋町間取り図
  • サムネイル1
  • サムネイル2
  • サムネイル3
  • サムネイル4
  • サムネイル5
  • 間取り図
電話でのお問い合わせ

西宮センター(通話料無料)

0120-732-811(通話料無料)

〒663-8204 兵庫県西宮市高松町5番39号
なでしこビル1階

営業時間  09:30~17:30

定休日   水曜日・祝日

マイページ

おすすめポイント(アイコン上にマウスポインタを重ねると説明文が表示されます)

即入居可

戸建またはマンションですぐに入居が可能な物件

駅徒歩5分以内

最寄り駅まで徒歩5分以内の物件

物件概要

更新日:2026年01月24日 次回更新予定日:2026年02月07日
所在地
兵庫県西宮市 笠屋町

周辺地図 街の情報を見る

交通 阪神電鉄武庫川線 『東鳴尾』駅 徒歩5分
阪神電鉄本線 『鳴尾・武庫川女子大前』駅 徒歩15分
価格 3,080万円 ローンシミュレーション
間取り 4LDK
建物面積 89.19㎡(約26.97坪) 土地面積 80.44㎡(約24.33坪):公簿
建物構造 木造 地上2階建て 築年月 2001年03月
土地権利 所有権 地目 宅地
都市計画 市街化区域 用途地域 第一種住居地域
建ぺい率 60% 容積率 160%
接道状況 東 4m 私道
私道負担 駐車場
その他費用
建物状況 空家 引渡し可能年月 即時
建築確認番号 取引態様 媒介
公法規制その他 国土法:否
備考 私道負担 有 別途101.33㎡のうち持分7分の1
物件番号 0013-01202147
建物状況調査日

掲載物件情報の表示について

(ご注意)
価格などの上記の内容は、変更になっている場合があります。
最新の情報は担当の営業センターへお問い合わせください。

未完成物件の場合の築年月は、工事完了予定年月として表示しています。

ローンシミュレーション(試算)

物件価格

3,080万円

年収

頭金

ボーナス支払額(年間)

返済期間

金利

月々のお支払金額万円

年収も含めた詳細なシミュレーションはこちら

より詳細に調べる
※シミュレーションでの試算(計算)結果は、あくまでも目安です。実際にローン契約をする際は、詳細を金融機関にご確認ください。
※実際のローン契約の際には、諸費用が別途かかります(手数料や印紙税、保証料など)。契約の際にご確認ください。

返済早見表

ボーナス 35年 30年 25年 20年 15年 10年
10万円
20万円
30万円
40万円
50万円
60万円
70万円
80万円
90万円
100万円

凡例

年収に占める返済比率 背景色 意味
1%未満 グレー 試算不可
1%以上25%未満 無理なく返済できる
25%以上40%未満 黄色 返済負担が大きい
40%以上 借入が難しい

※返済早見表での試算(計算)結果は、あくまでも目安です。実際にローン契約をする際は、詳細を金融機関にご確認ください。
※実際のローン契約の際には、諸費用が別途かかります(手数料や印紙税、保証料など)。契約の際にご確認ください。

ローンシミュレーション

お問い合わせ

電話でのお問い合わせ

西宮センター((通話料無料))

0120-732-811((通話料無料))

営業時間09:30~17:30

定休日水曜日・祝日

住所〒663-8204 兵庫県西宮市高松町5番39号
なでしこビル1階

最近閲覧した物件