物件詳細

一戸建て

東京都豊島区 千川2丁目

所在地

東京都豊島区 千川2丁目

交通

東京メトロ有楽町線 『千川』駅 徒歩12分
東京メトロ副都心線 『千川』駅 徒歩12分

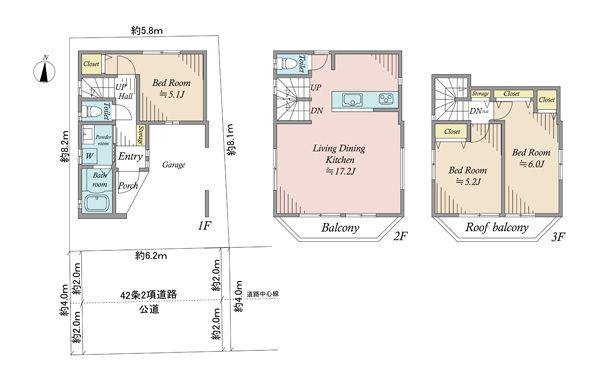
間取り

3LDK

築年月

2020年10月

建物面積

76.96㎡(約23.28坪)

土地面積

49.49㎡(約14.97坪):公簿

建物構造

木造 地上3階建て

  • 物件画像

    現地(2025年12月撮影)

  • 物件画像

    現地(2025年12月撮影)

  • 物件画像

    室内(2025年12月撮影)

  • 物件画像

    室内(2025年12月撮影)

  • 物件画像

    室内(2025年12月撮影)

  • 間取り図
東京都豊島区 千川2丁目間取り図
  • サムネイル1
  • サムネイル2
  • サムネイル3
  • サムネイル4
  • サムネイル5
  • 間取り図
電話でのお問い合わせ

池袋営業部(通話料無料)

0120-222-816(通話料無料)

〒171-0022 東京都豊島区南池袋2丁目28番13号
KHK池袋ビル6階

営業時間  09:30~17:30

定休日   水曜日・祝日

マイページ

おすすめポイント(アイコン上にマウスポインタを重ねると説明文が表示されます)

築10年以内物件

築年10年以内の物件

南道路

前面道路が敷地の南側に面している物件

物件概要

更新日:2026年01月18日 次回更新予定日:2026年02月01日
所在地
東京都豊島区 千川2丁目

周辺地図 街の情報を見る

交通 東京メトロ有楽町線 『千川』駅 徒歩12分
東京メトロ副都心線 『千川』駅 徒歩12分
価格 7,880万円 ローンシミュレーション
間取り 3LDK
建物面積 76.96㎡(約23.28坪) 土地面積 49.49㎡(約14.97坪):公簿
建物構造 木造 地上3階建て 築年月 2020年10月
土地権利 所有権 地目 宅地
都市計画 市街化区域 用途地域 第一種中高層住居専用地域
建ぺい率 60% 容積率 160%
接道状況 南 4m 公道
私道負担 駐車場
その他費用
建物状況 居住中 引渡し可能年月 相談
建築確認番号 取引態様 媒介
公法規制その他 ※前面道路幅員により、容積率が160%に制限されます。、国土法:否
備考
物件番号 0011-01220331
建物状況調査日

掲載物件情報の表示について

(ご注意)
価格などの上記の内容は、変更になっている場合があります。
最新の情報は担当の営業センターへお問い合わせください。

未完成物件の場合の築年月は、工事完了予定年月として表示しています。

ローンシミュレーション(試算)

物件価格

7,880万円

年収

頭金

ボーナス支払額(年間)

返済期間

金利

月々のお支払金額万円

年収も含めた詳細なシミュレーションはこちら

より詳細に調べる
※シミュレーションでの試算(計算)結果は、あくまでも目安です。実際にローン契約をする際は、詳細を金融機関にご確認ください。
※実際のローン契約の際には、諸費用が別途かかります(手数料や印紙税、保証料など)。契約の際にご確認ください。

返済早見表

ボーナス 35年 30年 25年 20年 15年 10年
10万円
20万円
30万円
40万円
50万円
60万円
70万円
80万円
90万円
100万円

凡例

年収に占める返済比率 背景色 意味
1%未満 グレー 試算不可
1%以上25%未満 無理なく返済できる
25%以上40%未満 黄色 返済負担が大きい
40%以上 借入が難しい

※返済早見表での試算(計算)結果は、あくまでも目安です。実際にローン契約をする際は、詳細を金融機関にご確認ください。
※実際のローン契約の際には、諸費用が別途かかります(手数料や印紙税、保証料など)。契約の際にご確認ください。

ローンシミュレーション

お問い合わせ

電話でのお問い合わせ

池袋営業部((通話料無料))

0120-222-816((通話料無料))

営業時間09:30~17:30

定休日水曜日・祝日

住所〒171-0022 東京都豊島区南池袋2丁目28番13号
KHK池袋ビル6階

最近閲覧した物件