物件詳細

一戸建て

東京都板橋区 大和町新築

□都営三田線「板橋本町」駅 徒歩約3分♪

所在地

東京都板橋区 大和町

交通

都営三田線 『板橋本町』駅 徒歩3分

間取り

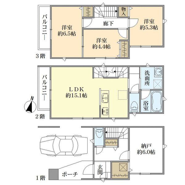
3LDK+納戸

築年月

2026年02月

建物面積

107.99㎡(約32.66坪)

土地面積

60.37㎡(約18.26坪):公簿

建物構造

木造 地上3階建て

  • 物件画像

    外観パース図

    3棟パース図全景【左から1・2・3号棟。車両・備品・植栽は価格に含まれません。植栽の見え方は実際と異なります。】※本件対象は3号棟

  • 物件画像

    外観

    3棟敷地全景(左から1・2・3号棟)
    ※2025年9月撮影※本件対象は3号棟

  • 物件画像

    外観

    3棟敷地全景(左から1・2・3号棟)
    ※2025年9月撮影※本件対象は3号棟

  • 物件画像

    外観

    3棟敷地全景(左から1・2・3号棟)
    ※2025年9月撮影※本件対象は3号棟

  • 物件画像

    前面道路含む外観

    前面道路(北方向)※2025年9月撮影

  • 物件画像

    前面道路含む外観

    前面道路(南方向)※2025年9月撮影

  • 物件画像

    周辺環境

    まいばすけっと 板橋本町駅南店 約100m

  • 物件画像

    周辺環境

    ファミリーマート 板橋本町駅北店 約300m

  • 物件画像

    周辺環境

    かえでの樹保育園 板橋本町 約390m

  • 物件画像

    周辺環境

    板橋富士見幼稚園 約750m

  • 物件画像

    周辺環境

    板橋区立板橋第八小学校 約600m

  • 物件画像

    周辺環境

    板橋区立板橋第三中学校 約640m

  • 間取り図
東京都板橋区 大和町間取り図
  • サムネイル1
  • サムネイル2
  • サムネイル3
  • サムネイル4
  • サムネイル5
  • サムネイル6
  • サムネイル7
  • サムネイル8
  • サムネイル9
  • サムネイル10
  • サムネイル11
  • サムネイル12
  • 間取り図
電話でのお問い合わせ

浦和センター(通話料無料)

0120-122-772(通話料無料)

〒330-0063 埼玉県さいたま市浦和区高砂2丁目12番10号
(みずほ銀行浦和支店3階)

営業時間  09:30~17:30

定休日   水曜日・祝日

担当者:

髙橋 力(タカハシ リキ)

マイページ
この物件の
アピールポイントは
アイコン
~Life information~
◎まいばすけっと 板橋本町駅南店 約100m(徒歩約2分)
◎ファミリーマート 板橋本町駅北店 約300m(徒歩約4分)
◎かえでの樹保育園 板橋本町 約390m(徒歩約5分)
◎板橋富士見幼稚園 約750m(徒歩約10分)
◎板橋区立板橋第八小学校 約600m(徒歩約8分)
◎板橋区立板橋第三中学校 約640m(徒歩約8分)

おすすめポイント(アイコン上にマウスポインタを重ねると説明文が表示されます)

未入居物件

新築後未入居の物件

築5年以内物件

築年5年以内の物件

駅徒歩5分以内

最寄り駅まで徒歩5分以内の物件

物件概要

更新日:2025年11月17日 次回更新予定日:2025年12月01日
所在地
東京都板橋区 大和町

周辺地図 街の情報を見る

交通 都営三田線 『板橋本町』駅 徒歩3分
価格 8,380万円(消費税込) ローンシミュレーション
間取り 3LDK+納戸
建物面積 107.99㎡(約32.66坪) 土地面積 60.37㎡(約18.26坪):公簿
建物構造 木造 地上3階建て 築年月 2026年02月
土地権利 所有権 地目 宅地
都市計画 市街化区域 用途地域 第一種住居地域
建ぺい率 60% 容積率 160%
接道状況 西 4m 公道
私道負担 駐車場
その他費用
建物状況 未完成 引渡し可能年月 2026年03月 下旬
建築確認番号 第SJK-KX255108760号 取引態様 媒介
公法規制その他 敷地面積の最低限度60㎡、宅地造成等規制区域、景観計画区域(一般地域)、防火準防火:準防火、高度地区:第三種高度地区、計画道路:無し、国土法:否
備考 ガス:都市、水道:公営、下水:公共
物件番号 0000-01137240
建物状況調査日

掲載物件情報の表示について

(ご注意)
価格などの上記の内容は、変更になっている場合があります。
最新の情報は担当の営業センターへお問い合わせください。

未完成物件の場合の築年月は、工事完了予定年月として表示しています。

ローンシミュレーション(試算)

物件価格

8,380万円(消費税込)

年収

頭金

ボーナス支払額(年間)

返済期間

金利

月々のお支払金額万円

年収も含めた詳細なシミュレーションはこちら

より詳細に調べる
※シミュレーションでの試算(計算)結果は、あくまでも目安です。実際にローン契約をする際は、詳細を金融機関にご確認ください。
※実際のローン契約の際には、諸費用が別途かかります(手数料や印紙税、保証料など)。契約の際にご確認ください。

返済早見表

ボーナス 35年 30年 25年 20年 15年 10年
10万円
20万円
30万円
40万円
50万円
60万円
70万円
80万円
90万円
100万円

凡例

年収に占める返済比率 背景色 意味
1%未満 グレー 試算不可
1%以上25%未満 無理なく返済できる
25%以上40%未満 黄色 返済負担が大きい
40%以上 借入が難しい

※返済早見表での試算(計算)結果は、あくまでも目安です。実際にローン契約をする際は、詳細を金融機関にご確認ください。
※実際のローン契約の際には、諸費用が別途かかります(手数料や印紙税、保証料など)。契約の際にご確認ください。

ローンシミュレーション

お問い合わせ

電話でのお問い合わせ

浦和センター((通話料無料))

担当者:

髙橋 力(タカハシ リキ)

0120-122-772((通話料無料))

営業時間09:30~17:30

定休日水曜日・祝日

住所〒330-0063 埼玉県さいたま市浦和区高砂2丁目12番10号
(みずほ銀行浦和支店3階)

最近閲覧した物件